アンビルドプロジェクトから学ぶ、家づくりアイデア集1 @石井正博+近藤民子
今週の “リレーブログ” を担当します、設計事務所アーキプレイスの石井正博+近藤民子です。
家づくりを考えるとき、「こんな間取りにしたい」「庭や光はどう取り入れよう」と迷うことは誰にでもあるものです。実際のプランは、敷地の形や周囲の環境、家族構成や生活スタイルによって大きく変わってきます。今回のリレーブログでは、実際には建てられなかった4つの住宅(アンビルドプロジェクト)をシリーズで取り上げ、建て主のご要望や敷地条件に対して私たちがどのように考えたか、設計の工夫や暮らしのアイデアを図面や模型写真とともに紹介します。読むことで、皆さんの住まいづくりに少しでもヒントが見つかれば幸いです。
第1回|中庭で暮らしに奥行きを生む家のアイデア_ふたつの中庭と暮らす家
敷地を最大限に活かし、中庭を中心にプランを組んだ住宅です。建物の配置やゾーニング、光や風の取り入れ方など、平面図や模型写真とともに紹介します。

角地の道路側から見た鳥瞰 2階の居住スペースやバルコニーは壁で守られている
■主なご要望
◎光と風
◎プライバシーと開放感(外から見ると閉鎖的、内にいると開放的)
○くつろげる空間、気持ちの良い空間
○生活動線がよく使い勝手がよい
○ナチュラル、シンプル、エコ、断熱、防犯、耐震
○夏は涼しく、冬は暖かい
・ビルトインガレージ2台、客用駐車1台、自転車4台、
・貸ガレージ
・四角、白、グレー、木
■敷地条件
・東京都立川市
・284.6m2(86.09坪)
・南側道路 7.300m(42条1項1号)、西側道路 6.000m(42条1項1号)、
・建ぺい率70%(角地)、容積率200%
・第二中高層住居、準防火地域、第二種高度(5m+1.25a)
・東側住宅の2階には玄関と外廊下があるため考慮が必要
・道路の人通りはやや多い
・北側には将来建物が建つ
■設計主旨
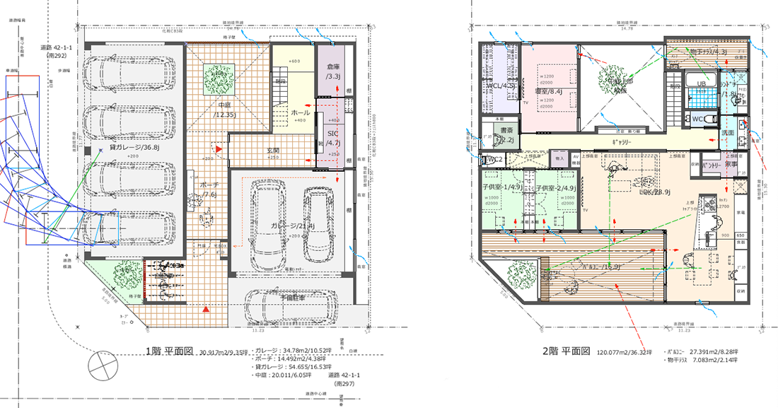
1.配置・ゾーニング計画
建ぺい率を最大限に活かし、敷地を壁で囲んで大きな中庭を確保しました。
1階は、南側道路に面してビルトインガレージと予備駐車スペースを、西側道路に面して4台分の貸ガレージを配置。その間を住宅へのアプローチとし、正面北側に中庭を広く設けています。
2階は、南側のバルコニーに沿ってLDKをL字型にレイアウト。東側にキッチンからつながる水まわりゾーン、西側に個室ゾーンをまとめ、その間をギャラリー空間でつなぐ構成としました。
2.2階で暮らしが完結する住まい
日常生活の大部分を2階で完結できるように計画しました。玄関とシューズインクローク、倉庫のみを1階に配置し、居住空間はすべて2階に集約。洗濯や物干しなどの家事動線も階段移動が不要で、ワンフロアで効率よく行える住まいです。
3.ふたつの中庭がもたらす光と安心感
窓はバルコニーや中庭+物干しテラスに面して設け、外からの視線を遮りながら心地よい開放感を確保しました。
バルコニーと中庭は室内に光や風を招き入れ、外周を壁で囲うことで通行人や近隣からの視線を防ぎます。これにより、開放感とプライバシーが両立した、安心して寛げる空間を生み出しています。

門扉を入ると石畳がシンボルツリーの植わる中庭まで続く 中庭は子供の遊び場にもなる 手前に木製の玄関扉

壁で守られたバルコニーと一体となる明るく開放的なLDK 段差のない床と板張りの傾斜天井(高さ2.4~3.7m)が一体感を強める
設計事務所アーキプレイス HP
設計事務所アーキプレイス ブログ
>>You Tubeチャンネル archiplacejapan
>>アンビルドプロジェクトから学ぶ、家づくりアイデア集1 @石井正博+近藤民子
>>アンビルドプロジェクトから学ぶ、家づくりアイデア集2 @石井正博+近藤民子
>>アンビルドプロジェクトから学ぶ、家づくりアイデア集3 @石井正博+近藤民子
>>アンビルドプロジェクトから学ぶ、家づくりアイデア集4 @石井正博+近藤民子
設計事務所アーキプレイスでは、石井正博と近藤民子の男女ペアの視点を活かして、暮らし易さ(光と風、家事動線、収納など)、性能(安全性、断熱性、防犯性、耐久性など)、デザインのバランスのとれた心地よい住まいをご提案しています。
− 最新イベント情報 −
2025年11月29日(土)「江戸Styleの家」オープンハウスのお知らせ @小泉拓也+栗原守
「江戸Styleの家」オープンハウスを11月29日(土)に開催します。2005年7月に竣工した自邸兼モデルハウスです。約20年が経過していますので、無垢の木などの自然素材が時間の経過とともに美しく変化(経年美化)している様子を確認することもできます。自然素材の小振りな住まい、あたたかく気持ちのよい和モダンな住まいの雰囲気をご自身の目と心で体感してください。 *「江戸Styleの家」はエコの取り組みでグッドデザイン賞を受賞しました。 *2021年12月「渡辺篤史の建物探訪」、「突撃!隣...









