アンビルドプロジェクトから学ぶ、家づくりアイデア集2 @石井正博+近藤民子
昨日に続き、“リレーブログ” を担当します、設計事務所アーキプレイスの石井正博+近藤民子です。
今回ご紹介しているのは、実際には建てられなかった4つの住宅(アンビルドプロジェクト)。敷地条件やご要望に応じて私たちがどのように考え、形にしていったかを、図面や模型写真とともにお伝えしています。2日目の今日は、「暮らしが広がるテラスのある家」をご紹介します。
第2回|二世帯でもストレスフリー!暮らしやすい工夫のある家_暮らしが広がるテラスのある家
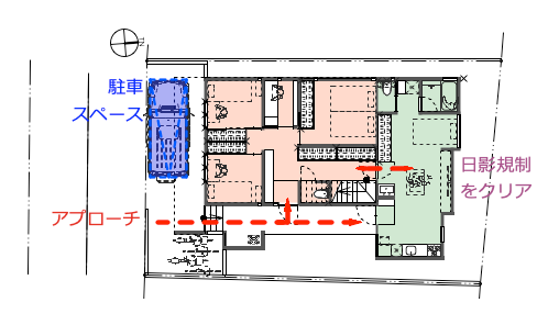
敷地は道路より約1m高く、道路斜線や北側斜線(高度斜線)が厳しい条件をもっています。そこに駐車スペースを確保しつつ、二世帯住宅ならではの動線やプライバシーに配慮し、家族が自然に会話できる工夫を盛り込みました。LDKの配置や回遊動線、居室のつながりなど、暮らしやすさを意識した設計のポイントを図面や模型でご紹介します。住まいづくりのヒントになれば幸いです。
道路南東側から見る 雨を避けられるように片持ち構造で持ち出したテラスの下にガレージを確保 右奥の外階段(4段)を上がり、子世帯と親世帯の玄関ポーチまで雨に濡れずに行ける。
■主なご要望
◎敷地を最大限の生かしたパッシブデザインの計画
◎外部の視線からプライバシーが守られた住まい
◎生活パターンに沿った動線と間取り
○ナチュラルモダンでシンプルな設計
○必要な場所にきちんと仕舞える収納
○2階リビングの天井高さ4m以上
・快適に過ごせる空気(温度、湿度、通気、換気システム)
・家族構成:夫婦、子2(長女長男) 親世帯:お父様(78歳)
■敷地条件
・東京都大田区
・建ぺい率/容積率 50%→60%(準耐火) /100%(前面道路幅員5.5m)
・第1種低層住居専用地域、準防火地域、
・第一種高度
・日影:4h-2.5h-1.5m(軒高7m超え又は地階を除く階数3)
・高さ限度10m、
・前面道路:42条1項1号
・敷地面積 168.655m2(51.01坪)
・建築面積 許容 84.32m2(25.5坪)→101.193m2(30.61坪)(準耐火)
・延床面積 許容168.655m2(51.01坪)
■設計主旨
1.敷地のポテンシャルを最大限に活かした住まい
建ぺい率や容積率、道路斜線などの法規制に加え、高度斜線や日影規制もクリアできる建物形状を検討。バルコニーによる広がり、ロフトや高天井、大きな窓を組み合わせることで、多様で奥行きのある空間を実現しました。
敷地東側を開放してアプローチ空間とし、北側にあるお父様の部屋にも南の光を取り込めるよう主採光窓を計画。二世帯が内部で行き来できるつながりも備えています。
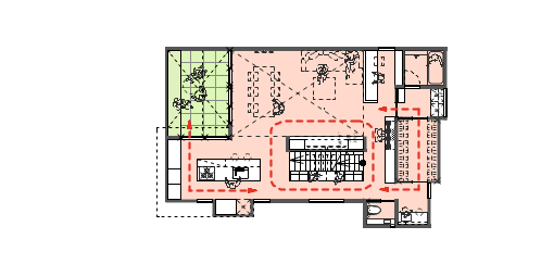
2.会話を育む住まいの中心
LDKはダイニングを中心に、キッチン、リビング、バルコニーをゆるやかにつなげました。その周囲にはスタディコーナーや図書スペースを設け、さらに吹抜けに面したロフトも配置。
家族の気配が自然に伝わり、友人を招いて食事や会話を楽しめる、にぎわいのある住まいとなっています。
3.生活リズムに寄り添う動線計画
2階は回遊性のある間取りとし、行き止まりのない動線で各空間をつなげています。適切な場所に収納や家具を組み込み、家事や日常の動きがスムーズに行えるよう配慮しました。効率と快適さを兼ね備えた暮らしやすいプランです。

LDK テラスに面した天井の高い(4.2m)のリビングとダイニング。 右奥にキッチン、正面上部にロフトが見える。 ソファの左隣には家族で利用できるスタディスペースがある。
テラスから室内側を見る 右の天井高さを抑えたキッチンの屋根越しに光が差し込む

[左]テラスとダイニングに面したアイランドキッチン 奥に図書コーナーが見える
[右]キッチンと図書コーナーの間に階段を上がってくる
設計事務所アーキプレイス HP
設計事務所アーキプレイス ブログ
>>You Tubeチャンネル archiplacejapan
>>アンビルドプロジェクトから学ぶ、家づくりアイデア集1 @石井正博+近藤民子
>>アンビルドプロジェクトから学ぶ、家づくりアイデア集2 @石井正博+近藤民子
>>アンビルドプロジェクトから学ぶ、家づくりアイデア集3 @石井正博+近藤民子
>>アンビルドプロジェクトから学ぶ、家づくりアイデア集4 @石井正博+近藤民子
設計事務所アーキプレイスでは、石井正博と近藤民子の男女ペアの視点を活かして、暮らし易さ(光と風、家事動線、収納など)、性能(安全性、断熱性、防犯性、耐久性など)、デザインのバランスのとれた心地よい住まいをご提案しています。
− 最新イベント情報 −
2025年11月29日(土)「江戸Styleの家」オープンハウスのお知らせ @小泉拓也+栗原守
「江戸Styleの家」オープンハウスを11月29日(土)に開催します。2005年7月に竣工した自邸兼モデルハウスです。約20年が経過していますので、無垢の木などの自然素材が時間の経過とともに美しく変化(経年美化)している様子を確認することもできます。自然素材の小振りな住まい、あたたかく気持ちのよい和モダンな住まいの雰囲気をご自身の目と心で体感してください。 *「江戸Styleの家」はエコの取り組みでグッドデザイン賞を受賞しました。 *2021年12月「渡辺篤史の建物探訪」、「突撃!隣...












