内科医院併用住宅建替え工事計画と間取りプラン@大磯
湘南の大磯で内科診療を続けている「脇内科医院」様から、医院建物の一部を建て替えたいご相談をいただきました。
建物の老朽化
内科医院はふたつの建物が連ながって1つの診療所になっていました。ふたつの建物のうち 先に建てられた建物は老朽化が進んでいて、安心して患者様に診療を受けていただくことが難しいと医師先生は考えておられたそうです。
▶︎▶︎ 関連解説記事「代替わりの内科クリニック併用住宅の計画設計」
代替りする院長先生
現在の脇院長先生のご子息様も内科の医師で、他県の病院で診療をされていました。今回の機にご実家に戻られて、現在の脇院長先生からクリニックを引き継ぐことになりました。
代替りでは、湘南大磯で永年の診療による信用をこれからも持続していただけるように、クリニックの変わらないところと変えるところとを慎重に見極めて、計画設計を進めることになりました。

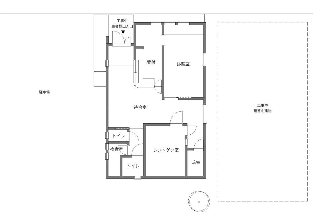
工事中の医院機能の整理
建替え計画を進めるにあたって、各建物に振り分けられていた役割を整理確認しました。
- 建替え工事中に最小限必要な診療役割機能
- 最小限に絞った診療役割機能の位置
- 建替え完成後の診療機能とその位置
が何度も話し合われました。

患者様の出入口
既存の患者様用の出入口は 今回の建替え工事では維持される建物にありました。工事中の患者様用出入口はそのまま利用されました。
建替え工事が完成したときには、完成した建物に新たなクリニックの出入口を設けられることになりました。既存の出入口は、発熱外来患者様専用の出入口になりました。
待合室・受付
患者様の待合室と受付は、工事中既存をそのまま利用して、建替え建物完成後は新築建物に待合室・受付は移されることになりました。
既存受付は建替え完成後、発熱外来患者様用の対応受付になりました。
診察室
診察室も既存建物の部分に集約されることになりました。
建替え建物完成では、診察室に連結して検査室・処置室が設けられました。
X線室
X線室も既存部屋を継続利用されることになりました。
ただレントゲン機器は工事完成にあたりアナログ機器からデジタル機器に取替えられることになりました。
X線室が工事期間中、継続利用出来ることで、休院しないで建替え工事が行えることになりました。
▶︎▶︎ 関連解説記事「仮診療所のX線室レントゲン放射線遮蔽プレハブユニットボックス」
発熱患者様 隔離待合室検査室
既存医院における発熱患者様をお迎えする検査室は 今回の工事で解体される建物部分に位置していました。建替え工事中の発熱患者様の診療は、診療受付時間を調整して受付することになりました。
建替え完成後は、一般の患者様の出入口を建て替えられた建物に移し、既存建物の出入口を発熱患者様専用の出入口にしました。既存建物の出入口と待合室とを区切って発熱患者様専用の待合室検査室にしました。
▶︎▶︎ 関連解説記事「内科循環器科医院クリニックに発熱外来隔離検査室を設置」
出入口を2つに分けれたことで、一般患者様と発熱患者様が対面し合わないように出来ました。



患者様トイレ
患者様が利用するトイレは、誰でも支障なく施設を利用できるようにする「みんなのバリアフリー街づくり条例」に基づいて、車椅子の方も利用できる広さにして建替えられる建物部分に設置されました。
- 入口の幅、扉は引戸
- トイレ内側の広さ
- 手摺がある便器
- 下部に足が入れる洗面器具
など、各部の寸法や設置する器具が規定されています。

スタッフ用更衣室
スタッフ用更衣室は工事で解体される建物にありました。建替え建物完成時にスタッフ更衣室は新しい建物に設けられました。
更衣室は収納もある部屋になり、一つの部屋を棚で区切ることにされました。
休診しない建替え工事
工事中 解体しない建物に診療の機能を集約して維持できたことで、建替え工事中 休診しないで建替え工事が出来ることが確認できました。
▶︎▶︎ 関連解説記事「内科医院クリニック併用住宅代替わりで休院しない建替え設計計画順序」
▶︎▶︎ 関連解説記事「仮診療所のX線室レントゲン放射線遮蔽プレハブユニットボックス」
特筆すると X線室を継続利用出来ることが最大の要因です。診察室やその他は建替え工事中、患者様のご協力は必要ですが、診療は維持出来ました。
患者様への診療サービスを休院しないで維持できると分かった際は、医師先生は大変安心されたご様子でした。
医院併用住宅の間取りプラン
必要な部屋を列記して、部屋と部屋との関係性を確認整理すると、1階はクリニック、2階は住居という配置になりました。
1階クリニックは、
- 一般患者様用出入口
- 待合室・受付カウンター
- 検査室・処置室
- 患者様用トイレ
- スタッフ更衣室
2階住居は、
- 院長室
- 休憩室
- 応接室
という、構成になりました。
間取りプランが検討・設計されました。


最大限広く
建替え建物は、ご自宅と既存医院に挟まれた位置にあります。この限られた場所に最大限の広さを確保した建物が求められました。
建ぺい率最大面積まで確保
建ぺい率が最大で、さらに限界となる大きさは、建替え工事中の足場が両側の建物の隙間に建てられるギリギリまで拡大された建物にされました。

著者情報
「医院・薬局」関連解説記事
- 住宅リビングや店舗客席医院待合室診察室の間接照明の演出と照度
- 調剤薬局は第一種低層住居専用地域に建てられる?
- 歯科医院クリニック改修リフォームの工事金額費用を予算金額内で設計
- 医院クリニックモールビルの建替新築計画設計
- 歯科医院クリニック併用住宅の工事費を安く建てる設計工夫
- 医院診療所クリニックの内装工事費坪単価を安くする工夫方法
- 歯科医院デンタルクリニック開業を設計と施工を分離した設計事務所に相談
- 小児歯科医院の受付カウンターとカルテ棚を間仕切りに利用する
- 大磯の調剤薬局併用住宅建替えの売場内装間取りインテリア設計図
- 大磯の調剤薬局店舗の建物外観デザイン正面ファサード設計図
- 大磯の調剤薬局の外部看板サイングラフィックデザインとブランディング
- 木造歯科医院併用住宅の地盤調査と杭基礎地業工事
- 糖尿病内科医院クリニックの間取りプラン平面図
- 心療内科精神科医院メンタルクリニックの新型コロナウィルス感染防止対策
- 心療内科精神科医院クリニックの診察室の防音遮音対策設計工事
- Uターン帰郷して借地に歯科医院併用住宅を建て再開院間する平屋取りプラン
- 調剤薬局付二世帯住宅建替え中仮店舗営業建物ファサード看板デザイン商品陳列内装インテリア
- 待合室に洗口台手洗台設置歯科医院の間取りプラン設計図
- メンタルクリニック心療内科受付カウンター高さ寸法設計図
- 医院クリニック診療所のカルテ収納棚置場の設計図工夫
- 内科医院診療所のX線室レントゲン放射線遮蔽の内装床壁天井
- メンタルクリニック心療内科受付カウンター高さ寸法設計図
- 医院クリニック診療所のカルテ収納棚置場の設計図工夫
- 内科医院診療所のX線室レントゲン放射線遮蔽の内装床壁天井
- 内科診療所医院クリニック併用住宅の代替わり建替えで休院しない計画設計工事順序
- 内科医院併用住宅建替え工事計画と間取りプラン
- 内科医院併用住宅の建物外観ファサードデザイン
- 内科クリニック面格子引戸出入り口
- 内科クリニックの段差を無くすバリアフリー条例
- 内科医院クリニックの待合室の工夫設計バリアフリーと高天井吹抜空調換気音響設計
- 内科クリニック待合室吹抜け高い天井照明
- 内科クリニックの待合室吹抜け高い天井のエアコン空調換気設備
- 内科クリニック高い天井吹抜け待合室の残響音を無くす吸音材
- 内科クリニックの受付カウンター
- 内科クリニックのカルテ収納棚
「併用住宅・複合建築物」関連解説記事
北島俊嗣 リレーブログ記事
- 住宅リビング店舗客席医院待合室の家具選び
- 和風木造住宅の屋根の形デザイン葺き材料
- 住宅リビングや店舗客席医院待合室診察室の間接照明の演出と照度
- 用途変更の建築確認申請手続きが必要な建物
- 調剤薬局は第一種低層住居専用地域に建てられる?
- 木造3階建て共同住宅賃貸アパートの設計
- 和風木造二世帯住宅の外観内装デザイン設計
- 歯科医院クリニック改修リフォームの工事金額費用を予算金額内で設計
- 大地震に耐えて倒れない家住宅建物にするために
- 台風やゲリラ豪雨長雨による住まい建物の雨水洪水対策
- 企業本社オフィスビル建物の建替新築計画設計
- 木造2階+3階建て二世帯住宅の日当りを良くする設計
- 医院クリニックモールビルの建替新築計画設計
- 木造3階建てデザイン注文住宅リフォーム工事費用を安くする
- 工場事務所オフィス建物の建替え計画設計
- 上下分離の二世帯住宅の間取りプラン設計比較
- 歯科医院クリニック併用住宅の工事費を安く建てる設計工夫
- 相続土地活用の賃貸テナントビル事業収支計画と設計デザイン
- 和風外観二世帯住宅の建替え設計デザイン意匠
- 内外断熱の違いと断熱材発泡スチレンウレタングラスウール
- 高級和風寿司飲食店舗和風モダン内装インテリア設計
- 旗竿地隠れ家木造ロフト長屋型アパート設計デザイン
- 土地購入からのアパート計画ー杉並のロフト付賃貸長屋型木造アパート
- 医院診療所クリニックの内装工事費坪単価を安くする工夫方法
- 歯科医院デンタルクリニック開業を設計と施工を分離した設計事務所に相談
- 防火地域に建つ木造耐火建築物の工事費用坪単価―立川のロフト付アパート併用住宅
- 木造2階建てロフト付賃貸アパート併用住宅を住宅ローンで建てる
- 注文住宅の床の材料として畳たたみを敷いた部屋の使い方
- 今更聞けない注文住宅や別荘の家づくりに必要な5つのこと
- アパート賃貸物件を木造3階建か鉄筋コンクリート4階建かの見極め方法
- 大磯の調剤薬局併用住宅建替えの売場内装間取りインテリア設計図
- 大磯の調剤薬局店舗の建物外観デザイン正面ファサード設計図
- 大磯の調剤薬局の外部看板サイングラフィックデザインとブランディング
- コンクリートブロック塀の危険な使い方と正しい造り方
- 小児歯科医院の受付カウンターとカルテ棚を間仕切りに利用する
- 軽量鉄骨造と重量鉄骨造の違いと長所メリットと短所デメリット
- 和風住宅の床の間付け書院床柱落掛けに既存住宅の造作材料を再利用する
- 和風住宅の仏間と仏壇壁面造作
- 和風住宅の和室応接室の駆込み天井と竿縁天井の埋込み照明
- 木造歯科医院併用住宅の地盤調査と杭基礎地業工事
- 糖尿病内科医院クリニックの間取りプラン平面図
- RC造マンションの設計事務所が行う定期検診と大規模修繕改修工事
- マンションリフォームで設計事務所が関わるメリットデメリット
- エコカラットのアレルギー吸収効果と壁面仕上げデザイン
- マンションリフォームでアレルギー反応材料をサンプル実体験で判定
- 個室寝室を遮音防音室に変えるマンションリフォーム
- マンションリフォームで生活に彩りを添える玄関リビング階段壁面の飾り棚
- 地下室の建築費用が地上建物より高額になる理由
- 建築不可土地に接道確保で建築可能になった路地状旗竿敷地
- 木造2階建て賃貸アパートを満室にする設計工夫
- 遠距離敷地の設計施工相談方法進め方
- 心療内科精神科医院クリニックの診察室の防音遮音対策設計工事
- 心療内科精神科医院メンタルクリニックの新型コロナウィルス感染防止対策
- 在宅勤務テレワーク用書斎机スペースを設けた木造和風二世帯住宅リビング
- 和風住宅の床の間付書院応接間を在宅勤務テレワークの打合せスペースに
- 地下RC造建物の地中外壁防水止水と内部湧水集水排水対策
- 地下水排水対策用外壁二重壁基礎ピット排水釜場ポンプ点検口
- 土地購入してロフト付賃貸アパート併用住宅木造耐火建築を住宅ローンで建てる
- 石彫刻工房アトリエ展示ギャラリー兼用住宅
- Uターン帰郷して借地に歯科医院併用住宅を建て再開院間する平屋取りプラン
- 調剤薬局付二世帯住宅建替え中仮店舗営業建物ファサード看板デザイン商品陳列内装インテリア
- ピロティ型大型車輌駐車庫ガレージ付きオフィス管理事務所
- 荷物EV付在庫商品倉庫せんべい和菓子小売販売店舗の和風数寄屋外観内装間取りプラン設計図
- 木造住宅のスケルトンリフォームで内装設計と構造骨組み補強
- 住宅リフォーム梁小屋組が見える吹抜け天井に間接照明
- 木造住宅リフォームキッチン移動リビング拡充間取り設計
- 住宅個室内のドレッサー化粧台鏡家具造作設計図
- 待合室に洗口台手洗台設置歯科医院の間取りプラン設計図
- メンタルクリニック心療内科受付カウンター高さ寸法設計図
- 医院クリニック診療所のカルテ収納棚置場の設計図工夫
- 内科医院診療所のX線室レントゲン放射線遮蔽の内装床壁天井
- 二世帯住宅に和風リビングに書斎事務机サテライトテレワークスペース設計
- 寝室を防音して静かに眠る住宅にする遮音設計図
- 数寄屋和風二世帯住宅の屋根軒先に雨樋を付けない雨水排水処理
- 親子世帯を上下分離か左右配置か和風二世帯住宅の間取りプラン設計図
- 防音遮音界壁にする木造賃貸アパート住戸間壁の設計図
- 建替え出来ないと言われた敷地で土地共有者と合意して新築建替え
- 家を建てる敷地の接道道路幅員細街路狭あい拡幅協議の道路後退セットバック
- 家の建替えに必要な敷地測量図
- 北西方向き狭小敷地に明るいリビングの家を建てるプラン間取り設計
- 面積容積を広く大きくする木造2階建てロフト付き狭小住宅の間取りプラン設計
- 注文住宅の和室仏壇の引戸を折戸に改修した造作設計
- 住宅密集地の木造狭小住宅で日差しを取込みリビングを明るくする屋根
- 風通しを良くする住宅密集地の木造狭小住宅の工夫
- 木造2階建狭小住宅の玄関を広く感じるスケルトン階段と手摺
- 住宅密集地の木造狭小住宅のLDKリビングダイニングキッチンを2階に配置して明るくする
- 木造住宅の階段上がり下がりはじめに彩光窓
- 住宅密集地に建つ狭小住宅の視線を合わせない高窓
- 通風出来る雨戸を住宅密集地の木造狭小住宅に設置
- 東京住宅密集地のリビングを明るくする木造狭小住宅2階吹抜けのハイサイド高窓
- 住宅密集地に建つ狭小住宅2階吹き抜けリビングダイニングの照明
- 木造住宅ダイニング食卓テーブルの天井照明器具と設置位置移動調節の回転式ライティングレール
- 木造住宅リビング吹抜けの床暖房とエアコンとシーリングファン
- 木造住宅の対面II型キッチンの選び方作り方設計
- 木造住宅で外気風を取り込む左右片開き方型上下ガラス窓
- シャンプーシャワー付き既製品洗面台を特注造作引出し付き収納台に乗せる木造住宅
- 木造戸建て住宅で洗濯物を雨雪日に干せる屋根付き半屋外バルコニー物干し金物
- 木造住宅建替えの地鎮祭で神主様にお祓いいただいて古井戸を埋める
- 木造2階建て住宅建替えで問題解決して実現した建前上棟
- 住宅の木造骨組みシロアリ対策 (防蟻処理)
- 内科診療所医院クリニック併用住宅の代替わり建替えで休院しない計画設計工事順序
- 世田谷区下北沢パチンコ店舗遊技場をスポーツゴルフ練習場へ用途変更確認申請
- 遠距離の賃貸テナントビル内事務所を物販店舗飲食店舗に用途変更
- 用途変更確認申請には確認済書・検査済書・構造計算書が必要
- 川崎高津のRC造3階建て賃貸マンションアパートの間取り設計プラン
- 3階建て共同住宅賃貸マンション@川崎のRC鉄筋コンクリート造壁式ラーメン構造設計
- 賃貸共同住宅マンション@川崎の共用出入口郵便受箱ポストメール宅配ボックス設計
- RC造3階建て賃貸マンション@川崎の地質ボーリング調査と杭地業工事地盤補強
- RC造3階建て賃貸マンション@川崎の住戸間取りプランとインテリアデザイン内装設計
- 川崎のRC造3階建て賃貸マンションのファサードデザイン外観設計
- 箱根別荘を一棟貸し宿貸別荘民泊に改修リフォームリノベーション
- 箱根別荘を貸別荘民泊にリノベーション改修リフォームでLDKワンルーム
- 箱根別荘を貸別荘民泊に改修リフォームで緑眺望を楽しむ開口窓サッシ
- 箱根別荘を民泊貸別荘に改修リノベーションの断熱除湿結露カビ対策
- 内科医院併用住宅建替え工事計画と間取りプラン
- 内科医院併用住宅の建物外観ファサードデザイン
- 内科クリニック面格子引戸出入り口
- 内科クリニックの段差を無くすバリアフリー条例
- 内科医院クリニックの待合室の工夫設計バリアフリーと高天井吹抜空調換気音響設計
- 内科クリニック待合室吹抜け高い天井照明
- 内科クリニックの待合室吹抜け高い天井のエアコン空調換気設備
- 内科クリニック高い天井吹抜け待合室の残響音を無くす吸音材
- 内科クリニックの受付カウンター
- 内科クリニックのカルテ収納棚
- 内科医院併用住宅の客間を和室にする
- 内科クリニック併用住宅の客間和室の床の間落とし掛け
- 内科クリニック併用住宅の客間和室の障子
- 内科クリニック併用住宅の内断熱ウレタン吹付材
- 内科クリニック併用住宅建替え工事の地鎮祭
北島俊嗣の設計実績解説記事
家づくりのしくみ・建築家の役割
家の費用・安く建てる工夫・設計料・保証
土地探しから家づくり・旗竿地・変形地・傾斜地
注文住宅
二世帯住宅
賃貸収益建物・アパート・マンション
医院クリニック診療所・クリニックビル・高齢者施設
新築建替え 医院診療所併用住宅クリニックビル
事務所オフィス・工場・倉庫
和風住宅・和風店舗
商業店舗・飲食店・販売店・温浴施設
寺院・神社
公共施設・学校・体育館・プール
アパート併用住宅・医院兼用住宅
ガレージ駐車場付・倉庫付・医院付・薬局付・複合建築物
在宅勤務の書斎仕事場・リモートテレワークルーム・サテライトスペース
確認申請不要な10m2未満の増築6畳木造ロフト付離れ小屋秘密基地
地下建築物
改修リフォーム・大規模修繕・耐震改修
用途変更・許可申請・定期調査報告
構造・耐震・免震・木造・鉄筋コンクリート造・鉄骨造
防水・排水・除湿
防音・吸音・遮音・音響
断熱・遮熱・保温・蓄熱
太陽光発電パネル・エネファーム
アレルギー対策
建物の感染症拡大防止対策
建築材料の保存再生利用・解体工事
キッチン・トイレ・洗面・水廻り設備
空調エアコン・換気設備
照明計画設計と器具
建物内部の造作家具特注設計
神棚・仏壇の造作
医院の造作家具特注設計
レントゲンX線室の間取りプラン放射線遮蔽
医院を休院しない建替え内装リフォーム設計工事
建物各部の詳細寸法
建築物の特殊な設計技術
解決困難な問題を実現した建築計画
新聞雑誌掲載・TV出演
展示相談会
遠距離設計業務
建築家の日記
よくある相談問合せ
建築用語の説明集

家づくりのしくみ・建築家の役割
- ハウスメーカーと設計事務所の違いはどこにある?
- 設計施工一括と、設計と施工の分離、どちらが良いの?
- コップの値段と家住宅建築の費用の違い
- 建築家が設計した家がハウスメーカーより安い理由
- ハウスメーカー様か設計事務所か
- 家の相談先
- 家を建てる相談先を誰にする?
- 家を建てるのには判らないこと(不安)ばかり
- 建築家は敷居が高い?
- 家を建てるのに、必要なもの
- 家づくりの順序と担当者
- 建て替えか?リフォームか?どちらが良いか迷っている
- 土地探しで失敗しない
- 敷地土地に家が建つか確認
- 家族の希望を話し合う
- 忙しくて打合せが出来ない/面倒な打合せはしたくない
- 工事を依頼したい工務店があるが、設計は別にしても良いのか?
- 用途変更の手続きが必要と言われた
- 注文住宅の家族の希望を聞いてくれるか心配
- 二世帯住宅で悩んでいる・・・家族の意見がまとまらない
- 二世帯住宅分離間取り設計図
- 二世帯住宅の間取り設計図
- 家が出来る前に形や色をしっかり確かめたい
- こだわりのイメージがあるが、誰に相談して良いか?
- オーダーメイドの家になれるの?
- 希望のデザインにどのように決まるか?
- 別荘のリフォームを考えているが、建て替えるべきか?迷っている
- 和風の家・内装の設計デザイン
- 注文住宅間取り設計図相談
- 高級注文住宅ホームデザイン設計図相談
- 遠距離地でも建築設計施工相談出来る?
- マンション杭施工不良データ改ざん防止対策
- 工務店さんから設計事務所に注文住宅設計相談依頼が出来る?
家の費用・安く建てる工夫・設計料・保証
費用
- コップの値段と家住宅建築の費用の違い
- 建築家が設計した家がハウスメーカーより安い理由
- 注文住宅の価格金額費用坪単価の試算
- 建築家設計料の目安相場(設計図作成費)
- 家を建てる金額費用と坪単価を試算する
- 家を建てるのにはどんな内容の支払いがあるか?
- 家を建てるのに全部で幾ら費用が掛かるのか?
- 家の工事金額価格を見積り比較して決めたい
- 家の費用が後から価格金額が上がるのが心配
- 1000万円台で家を建てたい!
- 2000万円台でこだわりの家にしたい
- 4000万円台で二世帯住宅を実現したい
- 6000万円台で土地探しからの家づくり
- 明朗会計になりますか?
- 明朗会計にする方法
- 家を建てた後、掛かる費用はあるか?
- 特別なコストで家を建てる方法
- 家を安く建てるにはどのような方法があるか?
- アパートマンション収益物件費用を安くする建築家
- 賃貸アパートマンション収益物件の事業収支計画組立
- 消費税増税率引上げと建設物価上昇
- 住宅ローンでアパート併用住宅を建てる
- 家を安く建てたい
- マンションリフォーム費用料金を安くする
- マンションリフォームの工事費用は部屋ごとに見積ると無駄がない
- リフォーム金額を安くする設計と見積
- リフォーム工事の変更追加精算方法
- 住宅マンション店舗医院改修リフォーム設計料目安相場
- SE構法の吹抜リビングで工事費を安くする
- 免震構造の設計と金額費用坪単価相場
- 家の完成後に必要な費用
- 大家さんの相続税対策
- 設計図面で複数工務店様に工事金額見積依頼
- 賃貸事務所オフィスビルRC造4階の建替え工事金額見積と坪単価
- 賃貸事務所オフィスビル建替え工事見積金額の査定と調整
- 和風二世帯住宅の工事金額概算見積金額
- 和風住宅の工事金額見積依頼と査定
- 和風二世帯住宅の工事金額費用坪単価相場
- 和風二世帯住宅の建替えで補助金を利用
- マンションリフォームの工事費用は部屋ごとに見積ると無駄がない
- 木造2階建て賃貸アパートの建設費用坪単価事業収支計画
- 木造2階建て賃貸アパートのメンテナンスの掛からない屋根外壁外装材内装
- 地下室コンクリート建物構造が地上建物より高額工事費用になる理由
- 歯科医院内装リフォームを安く収める
- 歯科医院併用住宅を安く建てる工夫
- 建替え中の仮設建物調剤薬局店舗工事金額費用を安くする工夫
設計料
保証
工事費の坪あたり単価
- 家注文住宅の工事金額価格費用坪単価相場
- 和風二世帯住宅の工事金額費用坪単価相場
- 医院クリニック建物建築工事費用金額坪単価相場
- 医院診療所内装工事金額費用クリニックコスト坪単価
- 賃貸事務所オフィスビルRC造の建替え工事金額見積と坪単価
- 工場事務所オフィスの鉄骨造建築コスト坪単価工事費相場
- 免震構造建物の設計と金額費用坪単価相場
土地探しから家づくり・旗竿地・変形地・傾斜地
- 土地探しで失敗しない
- 6000万円台で土地探しからの家づくり
- 医院クリニックの場所探し
- 土地を購入して賃貸アパートマンション収益物件を建てる
- 独立開院準備の場所探し
- 土地購入からアパート計画1
- 土地購入からアパート計画2
- 狭小地で風通しが良く陽当たりの良い家
- 三角形変形地の内装
- 路地状敷地アパート外観デザイン
- 旗竿地に隠れ家の設計デザイン
- 賃貸アパートマンションを旗竿地変形地で設計する
- 「いびつな土地」楽待不動産投資新聞インタビュー掲載
- 土地探しからの賃貸アパート収益物件の計画順序と金額費用相場
- 新築木造3階建歯科医院診療所の狭小敷地土地購入
注文住宅
注文住宅の性能
- 地震に強い注文住宅にしたい
- 免震構造を検討したい
- 制震構造で地震に強い注文住宅にしたい
- 土地が傾斜地で注文住宅が壊れないか心配
- 地震に強い家(耐震強度等級2)
- ガレージ車庫RC造・住宅木造で混構造設計
- 傾斜地に建つ古い建物で耐震補強
- 断熱性能を高めて光熱費を安くしたい
- アレルギーとシックハウスが心配
- 家の屋根に太陽光発電
注文住宅のデザイン
- 家が出来る前に形や色をしっかり確かめたい
- こだわりのイメージがあるが、誰に相談して良いか?
- オーダーメイドの家になれるの?
- 希望のデザインにどのように決まるか?
- 別荘のリフォームを考えているが、建て替えるべきか?
- 和風の家・内装の設計デザイン
設計実績
- 大地震でアパートの建替えを決意
- 陽当たりを良くする工夫
- 子供が遊べるリビング
- 防犯と風通しが出来る外付けブラインドサッシ
- 階段下収納のマグネット掲示板
- 大人の隠れ場所(屋根裏ロフト)と日常スペースを結ぶ吹抜リビング
- 居間リビングと縁側と庭の和風空間デザイン
- 二世帯住宅将来対応
- アイランドキッチンと背面収納
- 二棟をつなげる多機能バルコニー
- 効率の良い太陽光発電パネル屋根
- 水はけの悪い敷地のゲリラ豪雨排水対策
- 木造3階建住宅リビング書斎テレワークサテライトスペース勉強机
- 木造住宅のロフトにテレワークサテライトスペース自宅勤務書斎
◆「横浜西谷の二世帯住宅」
- ハウスメーカー様か設計事務所か
- 二世帯住宅の位置上下左右配置検討
- 二世帯住宅の水廻り設備共有?分離独立?
- SE構法の吹抜リビングで工事費を安くする
- 広いバルコニーと目隠しルーバー手摺
- 二世帯住宅に自宅勤務サテライトテレワーク用事務机仕事スペース
- 歯科医院併用住宅の相談のきっかけ
- 遠距離の土地に歯科医院併用住宅を建てる
- 歯科医院併用住宅のご希望
- 歯科医院併用住宅の間取りプラン検討決定
- 歯科医院併用住宅を安く建てる工夫
- 歯科医院併用住宅の地鎮祭
- 土台基礎コンクリートの配筋検査
- 木造部分の施工図
- 基礎コンクリート打設
- 外装壁材料のパース検討決定
- 上棟の準備:土台敷き
- 上棟
- 外装内装工事
- 看板サインデザイン
- 歯科医院併用住宅の工事完成
- バリアフリーな床扉トイレ
- 歯科医院クリニックの待合室椅子家具
- カルテ収納棚とロフト収納
- キッズスペースを設ける
- 患者様通しの視線を遮る目隠し板
- 目に優しい診察室の間接照明
- 移動式キャビネットを手洗台に収納
- 寝室を防音室にする
- 昭和初期和風二世帯住宅の耐震断熱改善の建替え
- 和風二世帯住宅の間取りプラン上下左右配置位置
- 和風二世帯住宅建替えの既存建物解体工事再利用造作部材
- 和風外観数寄屋住宅の既存建物屋根瓦の保存解体再利用
- 和風二世帯住宅の工事金額概算見積金額
- 和風二世帯住宅の詳細実施設計図と確認申請図
- 和風二世帯住宅の工事金額見積依頼と査定
- 和風建築二世帯住宅の地鎮祭
- 和風建築二世帯住宅の地縄で建物位置確認
- 和風建築二世帯住宅の地盤調査と地盤改良
- 和風数寄屋二世帯住宅の屋根庇軒先意匠デザイン
- 和風二世帯住宅のバルコニーFRP防水と排水
- 和風二世帯住宅の基礎鉄筋配筋検査とコンクリート打設
- 和風二世帯住宅の木造構造プレカット施工図
- 和風二世帯住宅の木造建て方上棟
- 和風二世帯住宅の内断熱発泡ウレタンと省エネ対策
- 和風二世帯住宅の防犯対策
- 和風二世帯住宅に自宅勤務用書斎机サテライトテレワークスペース
- 和室床の間書院をサテライトテレワーク自宅勤務用書斎スペースに
- 再建築建替え不可と言われた住宅を敷地共有者と同意で新築
- 道路接道幅員と狭あい細街路拡幅整備道路協議の後退セットバック
- 確認済書検査済書の無い住宅建替えのための敷地現況測量図
- 注文住宅建替え設計工事のための地盤調査補強工事
- 北西向き狭小敷地で明るい住宅リビングにする間取りプラン工夫
- 木造2階建ての面積容積を広く大きくする狭小住宅の間取りプラン
- 狭小敷地住宅の面積小を補う容積を大きくする設計工夫間取りプラン
- 明るい日差しを取り込む住宅密集地の木造狭小住宅の屋根の形
- 住宅密集地の木造狭小住宅で風通しを良くする工夫
- 木造注文住宅の玄関扉と壁面照明とアイアン表札とポストとインターホン
- 木造2階建て注文住宅玄関を広く見せるためのスケルトン階段と手摺
- 木造2階建て注文住宅スケルトン階段の段床板端鼻滑り止めノンスリップゴム
- 住宅密集地の木造狭小住宅の寝室に高窓
- 木造2階建て注文住宅照明器具の点灯三路赤外線センサータイマースイッチ
- 住宅密集地の木造狭小住宅の通風出来る雨戸
- 住宅密集地の木造狭小住宅2階配置LDKリビングダイニングキッチンを明るくする
- 住宅密集地の木造狭小住宅2階吹抜けリビングのハイサイド高窓の開閉操作
- 住宅密集地の木造狭小住宅2階吹き抜けLDKリビングダイニングの照明
- 木造住宅食卓ダイニングの照明器具と設置位置と調節可能なライティングレール
- 木造2階建て注文住宅吹抜けリビングのエアコンと床暖房とシーリングファン
- 木造2階建て注文住宅耐震補強の鉄骨筋交いブレース
- 木造2階建て注文住宅対面II型キッチンの作り方選び方設計
- 木造住宅両方向風向きで外風を取り込む上下左右片開き方型ガラス窓
- 木造注文住宅LDKリビングダイニングキッチンの床壁天井素材色彩デザイン
- 木造注文住宅吹抜け高天井リビングの照明ライティングレールスポットライト
- 木造注文住宅リビング照明給湯インターホンスイッチを壁ニッチに集約設置する
- 木造注文住宅階段下のパソコンディスク机造作とネット通信電話引込みコンセント
- 木造注文住宅ユニットバス洗面台洗濯機器の選定と決定
- 木造注文住宅洗面脱衣室の洗面化粧台作業台洗濯機と通風窓ガラス
- 木造住宅汚れ難いシャワー付き既製品洗面台を特注造作引出し収納台に載せる
- 木造注文住宅雨雪でも洗濯物が干せる屋根庇付きバルコニーと物干し金物
- 木造注文住宅バルコニーのFRP防水と浮き床デッキ材
- 木造注文住宅駐車場ガレージの軒裏天井の仕上げ材料と照明
- 木造注文住宅外壁とバルコニー手すりの色彩調和
- 木造住宅工事金額の見積金額予算オーバーコストダウン減額設計計画変更届出
- 木造注文住宅地鎮祭で古井戸を神主様にお祓いいただいて埋める
- 木造注文住宅地盤調査と地盤補強 地業工事
- 木造注文住宅骨組みで受けたウッドショックと建主様の決断
- 木造注文住宅キッチン台所造作工事の金額費用見積り比較
- 木造注文住宅の地中基礎鉄筋コンクリート工事と配筋検査
- 課題解決の上に実現した木造2階建て住宅建替えの建前上棟
- 木造注文住宅のシロアリ対策(防蟻処理)
- 木造注文住宅の屋根外壁床下断熱材と効果
- 木造注文住宅の外壁窓内部扉の開閉方向確認とガラスの種類を現地で確認
- 木造注文住宅の電気スイッチネットTV電源コンセント位置を現場で確認
- 木造注文住宅の空調エアコンを安価に賢く選ぶ
- 注文住宅玄関の防犯鍵錠前ディンプルキー
- 木造2階建て注文住宅玄関の大きな下駄箱収納
- リフォーム金額を安くする設計と見積
- リフォーム工事会社を選ぶ方法条件
- リフォーム工事の変更追加精算方法
- リフォームしてないようなリフォーム
- 防犯窓の取替
- 玄関扉の防犯カギ取替
- 天井吊りペンダント照明
- エアコン取替ネット購入
- ステンドグラス窓を綺麗に見せる
- 視線を遮断する植栽窓フィルムカーテン
◆確認申請不要な10m2未満の増築6畳木造ロフト付離れ小屋秘密基地
- 横浜木造2階建て住宅のスケルトンリフォームリノベーション
- 木造2階建て住宅内装リフォームの遠距離設計
- 住宅スケルトンリフォーム解体撤去構造骨組み補強内装設計
- 住宅リフォームの玄関扉内部建具扉のダイノックシート巻き
- 和室にキッチン移しリビング広げた住宅リフォーム間取り設計
- 戸建て住宅リフォームで小型仏壇を置く造作家具棚設計
- 階段縦型格子状壁面手摺の木造住宅リフォームリノベーション
- 天井撤去梁小屋組露出した吹抜け天井間接照明住宅リフォーム
- 女性用個室寝室の化粧前鏡ドレッサー造作家具設計
- 住宅リフォームの収納押入クローゼットの模様替え可動棚
- 大画面壁掛けTVモニターの壁下地と電気配線住宅リフォーム
- 住宅リフォームの洗濯機取替えゴミ取りボックスかさ上げ脚台
- 箱根仙石原貸別荘民泊一棟貸し宿スケルトン改修リノベーションリフォーム
- 箱根の民泊貸別荘の改修でLDKをワンルームにする
- 箱根の民泊貸別荘の改修で外部緑の眺望を楽しむ開口窓サッシ
- 箱根の民泊貸別荘の改修で眺望豊かな露天温泉風呂
- 箱根の民泊貸別荘の改修の断熱除湿結露カビ対策
◆湘南大磯のアトリエ工房住宅耐震壁屋根外壁防水断熱改修リフォーム
- アトリエ工房住宅の階段吹抜けホールデザイン設計
- 住宅アトリエ改修リフォームの木造骨組みと窓明かり
- アトリエ住宅の雨漏水骨組み故障を修理取替え耐震壁追加改修リフォーム
- アトリエ住宅雨漏水の屋根外壁防水断熱改修リフォーム
- 改修リフォームの解体工事は作る人が解体すると無駄がない理由
- 大磯の住宅世代交代キッチン台所造作の取替えリフォーム
- 住宅世代交代キッチンリフォームの吊り戸棚収納造作工夫
- 住宅世代交代洗面化粧室トイレのレイアウト改修リフォーム
- 住宅世代交代洗面化粧トイレの収納場所の工夫
- 住宅世代交代階段下の収納洗面台有効利用リフォーム
- 住宅世代交代キッチン台所の耐震断熱改修リフォーム
二世帯住宅
設計実績
- 大地震でアパートの建替えを決意
- 陽当たりを良くする工夫
- 子供が遊べるリビング
- 防犯と風通しが出来る外付けブラインドサッシ
- 階段下収納のマグネット掲示板
- 大人の隠れ場所(屋根裏ロフト)と日常スペースを結ぶ吹抜リビング
- 居間リビングと縁側と庭の和風空間デザイン
- 二世帯住宅将来対応
- アイランドキッチンと背面収納
- 二棟をつなげる多機能バルコニー
- 効率の良い太陽光発電パネル屋根
- 水はけの悪い敷地のゲリラ豪雨排水対策
- 木造3階建住宅リビング書斎テレワークサテライトスペース勉強机
- 木造住宅のロフトにテレワークサテライトスペース自宅勤務書斎
◆「横浜西谷の二世帯住宅」
- ハウスメーカー様か設計事務所か
- 二世帯住宅の位置上下左右配置検討
- 二世帯住宅の水廻り設備共有?分離独立?
- SE構法の吹抜リビングで工事費を安くする
- 広いバルコニーと目隠しルーバー手摺
- 二世帯住宅に自宅勤務サテライトテレワーク用事務机仕事スペース
建替えの理由・方法
- 昭和初期和風二世帯住宅の耐震断熱改善の建替え
- 和風二世帯住宅の間取りプラン上下左右配置位置
- 和風二世帯住宅建替えの既存建物解体工事再利用造作部材
- 和風外観数寄屋住宅の既存建物屋根瓦の保存解体再利用
- 和風二世帯住宅の工事金額概算見積金額
- 和風二世帯住宅の詳細実施設計図と確認申請図
- 和風二世帯住宅の工事金額見積依頼と査定
- 和風建築二世帯住宅の地鎮祭
- 和風建築二世帯住宅の地縄で建物位置確認
- 和風建築二世帯住宅の地盤調査と地盤改良
- 和風数寄屋二世帯住宅の屋根庇軒先意匠デザイン
- 和風二世帯住宅のバルコニーFRP防水と排水
- 和風二世帯住宅の基礎鉄筋配筋検査とコンクリート打設
- 和風二世帯住宅の木造構造プレカット施工図
- 和風二世帯住宅の木造建て方上棟
- 和風二世帯住宅の内断熱発泡ウレタンと省エネ対策
外観を和風にする
- 和風二世帯住宅の数寄屋外観屋根デザイン
- 和風二世帯住宅の外構庭玄関踏石畳みアプローチ
- 和風二世帯住宅の既存靴脱ぎ石の縁側再利用
- 和風二世帯住宅の外構庭の手入れと芝生砂利舗装
- 和風外観数寄屋住宅の金属板葺き屋根
- 和風外観数寄屋住宅の外壁塗り壁仕上げ
- 和風数寄屋二世帯住宅の樋の無い軒先の屋根雨水排水処理
- 夏至冬至太陽南中高度角度と和風住宅縁側の軒先庇と日当り
- 和風数寄屋二世帯住宅の庭眺めを楽しむ縁側深庇
- 和風数寄屋住宅の玄関引戸と照明
- 和風二世帯住宅の外壁窓サッシの開き勝手複層ガラス樹脂窓
- 和風二世帯住宅の計画変更手続きと軽微な変更届出
- 和風二世帯住宅の庭植栽の移植剪定
- 和風二世帯住宅の物干し
和室のデザイン
- 和風二世帯住宅の床柱欄間障子材料再利用
- 和風建築二世帯住宅の和室内装床の間書院デザイン
- 和風数寄屋二世帯住宅の和室雪見障子
- 和風二世帯住宅の玄関下駄箱と収納
- 和風数寄屋和室内装仕上材をサンプルで確認
- 和風数寄屋和室床の間の床柱落し掛け寸法
- 和風二世帯住宅の神棚
- 和風二世帯住宅の仏間仏壇
- 和風数寄屋二世帯住宅の明かり照明
- 和風数寄屋二世帯住宅の隠蔽型エアコン
- 和風応接室の家具選び
- 和風二世帯住宅に自宅勤務用書斎机サテライトテレワークスペース
- 和室床の間書院をサテライトテレワーク自宅勤務用書斎スペースに
モダンなリビング
- 二世帯住宅の北欧風リビングの壁面大型テレビ収納棚
- 二世帯住宅の対面並列2型アイランドキッチン
- 二世帯住宅の吹抜けリビングを明るくする天窓トップライト
- 二世帯住宅キッチン壁にモザイクタイルを貼る
- 和風二世帯住宅の風通しの良い和室床琉球畳引戸間仕切
- 二世帯住宅の吹抜リビング間接照明と天井吊下げペンダント照明
- 二世帯住宅の汚れにくく清掃し易い洗面器台
- 二世帯住宅の4畳半琉球畳和室を便利に使う
- 二世帯住宅の階段下収納
- 二世帯住宅の勝手口の風通し
- 二世帯住宅の寝室隣りのウォークインクローゼット造作
- 二世帯住宅北欧風リビングのソファ家具選び
- 和風二世帯住宅の箪笥タンスを継続利用する
- 二世帯住宅のカーテンを選ぶ
- 北側個室に天窓トップライトで採光明るさ確保
水廻りの工夫
賃貸収益建物・アパート・マンション
大家さんの悩み
皆(大家・入居者・周囲住民)の満足
新たな事業の方針で設計事務所が出来ること
- 土地を購入して賃貸アパートマンション収益物件を建てる
- アパートマンション建替えるか?リフォーム修繕か?
- 賃貸アパートマンション収益物件の建物用途の選び方
- 賃貸アパートマンション収益物件の事業収支計画組立
- 賃貸アパートマンション収益物件の銀行融資相談資料
- 相続税対策土地活用賃貸アパート収益物件設計図
- 賃貸アパートマンション収益物件建物の外装内装設備仕様グレード
- 土地探しからの賃貸アパート収益物件の計画順序と金額費用相場
設計事務所だから出来ること
- アパートマンション収益物件費用を安くする
- 賃貸アパートマンションを旗竿地変形地で設計
- アパートマンション併用住宅複合建物の設計図
- アパートマンション建替え設計相談
- アパートマンション収益物件の制限と課題を解決
- 選ばれる賃貸アパート収益物件の差別化提案と実現
- 土地探しからの賃貸アパート収益物件の計画順序と金額費用相場
設計実績
◆「東京市谷の企業独身寮」
◆「湘南茅ヶ崎市辻堂駅のRC造共同住宅賃貸アパート」
- 旗竿状狭小地に木造2階建て賃貸長屋型アパートを建てる@中目黒
- 旗竿型路地状42条2項道路と敷地接道整理で賃貸アパート建築可能か確認
- 建物計画建築設計図作成確認申請に敷地測量図が必要な理由
- 木造2階建て賃貸アパートの道路接道と狭隘道路協議=道路境界の確定
- 木造2階建て賃貸アパートの遠距離施主オーナーと設計工事の進め方
- 木造2階建て賃貸アパートを共同住宅か長屋か
- 木造2階建て賃貸アパートの建設費用坪単価事業収支計画
- 木造2階建て賃貸アパートの住戸面積と間取りプラン
- 木造2階建て賃貸アパートのトイレ風呂洗面脱衣洗濯水廻り設備室の間取りプラン
- 木造2階建て賃貸アパートの1LDK3連引き戸間仕切り
- 木造2階建て賃貸アパートの地鎮祭
- 木造2階建て賃貸アパートの地盤調査と地盤補強杭打設
- 木造2階建て賃貸アパートの基礎コンクリート配筋検査
- 木造2階建て賃貸アパートの木造骨組み建て方上棟
- 木造2階建て賃貸アパートのメンテナンスの掛からない屋根外壁外装材内装材
- 木造アパート住戸間の防音遮音界壁区画壁床の千鳥下地グラスウール充填
- 木造2階建て賃貸アパートの内装インテリア仕上げ材料
- 木造賃貸アパートの2階を吹き抜けトップライトにして広く見せる工夫差別化
- 木造2階建て賃貸アパートの外壁窓に防犯フィルムを貼る
- 木造2階建て賃貸アパートの内装ライティングレール照明
- 木造2階建て賃貸アパートの通信放送インターネット設備
- 木造2階建て賃貸アパートの外部玄関アプローチの明かり照明ライト
- 賃貸アパートにサテライトテレワーク在宅勤務事務机とLDK間仕切を設ける
◆「川崎久末のRC造3階建てロフト付賃貸マンション共同住宅」
- 川崎のRC造3階建て賃貸共同住宅外観内装インテリアデザイン設計
- RC造3階建て賃貸マンションの間取りプラン設計
- 賃貸マンションの構造鉄筋コンクリートRC造壁式ラーメン構造設計
- RC造3階建て賃貸マンションの入口エントランスアプローチデザイン設計
- RC造3階建て賃貸マンションの入口エントランスオートロックインターフォンと自動扉
- RC造3階建て賃貸マンションの共用出入口郵便受箱メールボックス設計
- RC造3階建て賃貸マンションの共用入口宅急便受ボックス設置設計
- RC造3階建て賃貸マンションの共用通路設備配管パイプシャフト
- RC造3階建て賃貸マンションの外観ファサードデザイン設計
- RC造3階建て賃貸マンションの住戸間取りプランとインテリアデザイン
- RC造3階建て賃貸マンションの地盤調査 (ボーリング調査) と 地盤補強杭地業工事
◆「横浜のマンション大規模修繕」
◆「上大岡の鉄骨3階建賃貸アパートの改修工事」
◆「横浜の賃貸マンションの大規模修繕改修工事」
- 賃貸マンションの一年毎点検による屋根外壁窓サッシ経過診断検査
- 賃貸マンション大規模改修工事を行うための定期検診と見極め判断
- 大規模マンション改修工事の見積金額費用と工事範囲の検討
- 賃貸マンション大規模改修工事見積金額の査定比較確認
- 賃貸マンション大規模改修の工事監理と検査
- マンション大規模改修工事で屋根防水外壁タイル塗装の劣化
◆「相模原の軽量鉄骨造2階建賃貸アパートの屋根外壁修繕改修工事」
医院クリニック診療所・クリニックビル・高齢者施設
- 医院クリニック内装設計の相談依頼先
- 医院クリニック建築設計図
- 医院クリニック開院内装設計図相談
- 医院クリニック開院の集客・内装デザイン設計図
- 医院クリニック独立開院相談は一級建築士設計事務所
- 医院クリニックの場所探し
- 医院クリニック内装は設計施工一括?分離?
- 医院クリニック診療所内装インテリア金額費用坪単価
- 医院クリニック内装工事の坪単価費用と相場
- 医院クリニック内装の設計費用料金(設計図作成費)
- 医院クリニック診療所併用注文住宅を建てる
- 医院クリニック診療室設計と患者様視点設計図デザイン
- 医院クリニック内装工事工務店の失敗しない選び方
- 医院クリニック内装看板HP広告トータルブランドデザイン
- 明朗会計で建てるには?
医院のコスト
- 医院クリニック診療所内装インテリア金額費用坪単価
- 医院クリニック内装工事を明朗会計にする
- 医院クリニック内装の設計費用料金(設計図作成費)
- 医院クリニック内装費を安くする
- 歯科医院内装リフォームを安く収める
- 歯科医院併用住宅を安く建てる工夫
- 工事金額見積の依頼・査定・比較で工務店選択@精神科医院
- 歯科医院の内装工事金額見積依頼と内容査定
- 建替え中の仮設建物調剤薬局店舗工事金額費用を安くする工夫
- 歯科医院クリニック内装造作工事で特注品既製品で金額抑制
- 小児歯科医院の開業資金銀行融資相談資料
- 調剤薬局店舗内装工事の金額見積り依頼と施主支給品発注品の区別
- 調剤薬局店舗の内装インテリア工事金額を安く抑えた工夫
- 糖尿病内科クリニックの内装工事費の試算と銀行融資相談
- 糖尿病内科クリニックの内装工事金額見積依頼
- 糖尿病内科クリニックの設計図と工事金額見積依頼
- 精神心療内科医院メンタルクリニック内装工事金額の見積依頼
- 新築歯科医院の工事者工務店様選び
設計実績
- 開院相談先に設計事務所を選んだ理由
- 独立開院準備の場所探しは設計事務所
- 医院クリニック内装費を安くする
- 暖かい内装インテリアデザイン
- カルテ収納棚を工夫
- 患者様が安心するオープン消毒室
- 患者様が眩しくない診察室照明
- 待合室の家具
- 相談カウンセリングルーム設置
- 看板サインデザインこだわり
◆「横須賀衣笠あつ歯科医院」
- 歯科医院内装工事を明朗会計にする
- 清潔感のある歯科クリニック内装
- 歯科診察ユニット台目隠し壁
- 診察室照明を眩しくなくする
- 使い易い消毒カウンター
- 子供にも判る優しい看板デザイン
- キッズコーナーを設けて安心
- 歯科医院併用住宅の相談のきっかけ
- 遠距離の土地に歯科医院併用住宅を建てる
- 歯科医院併用住宅のご希望
- 歯科医院併用住宅の間取りプラン検討決定
- 歯科医院併用住宅を安く建てる工夫
- 歯科医院併用住宅の地鎮祭
- 土台基礎コンクリートの配筋検査
- 木造部分の施工図
- 基礎コンクリート打設
- 外装壁材料のパース検討決定
- 上棟の準備:土台敷き
- 上棟
- 外装内装工事
- 看板サインデザイン
- 歯科医院併用住宅の工事完成
- バリアフリーな床扉トイレ
- 歯科医院クリニックの待合室椅子家具
- カルテ収納棚とロフト収納
- キッズスペースを設ける
- 患者様通しの視線を遮る目隠し板
- 目に優しい診察室の間接照明
- 移動式キャビネットを手洗台に収納
- 寝室を防音室にする
- 精神心療内科メンタルクリニックのプライベート防音感覚
- 壁の防音遮音性能を高める
- 複雑な部屋の繋がりを解決する間取りプラン
- 患者様のリラックスを心がけた待合室
- 排水管と排水ポンプを新設してトイレと手洗台を設置
- 工事金額見積の依頼・査定・比較を行って工務店を選択
- 短期間の設計と工事の心配と配慮
- 内装インテリアの仕上材をパースとサンプルで検討決定
- 内装床壁天井と設備工事の順番
- 医院クリニックサイン表示の検討確認
- 医院クリニック待合室の家具選び
- 新築ビルに歯科医院内装工事を行う事前確認チェック
- 代替わりの歯科医院クリニックの移転内装工事
- 患者様視線の歯科医院クリニック診療所内装方針
- 藤巻歯科医院の間取りプランの決まり方
- 藤巻歯科医院の手術室とカウンセリングルーム
- 医院クリニック診療所の出入口を自動扉で防火扉設備
- X線レントゲン室の寸法と放射線遮蔽内装仕上
- 藤巻歯科医院の看板グラフィックデザイン
- 藤巻歯科医院の開院予定告知を掲示
- 歯科医院インテリアデザインをパースで比較検討
- 藤巻歯科医院の診察室カルテ記入台
- 藤巻歯科医院の患者カルテファイルと収納棚
- 歯科診察台ユニットの周囲寸法
- 歯科医院の内装工事金額見積依頼と内容査定
- 藤巻歯科医院の患者様が眩しくない天井吊り間接照明
- 藤巻歯科医院の診察室の床下配管と上げ床
- 藤巻歯科医院の診察台ユニット間の目隠し板
- 藤巻歯科医院の受付カウンター寸法
- 藤巻歯科医院の窓のブラインドとロールスクリーン
- 藤巻歯科医院の広い待合室と椅子家具
- 藤巻歯科医院のキッズコーナー
- 藤巻歯科医院の保健所届出
- 歯科医院院長室スタッフルームの広さ
- 医院クリニックのポスターチラシの壁面掲示板
- 歯科医院クリニックにシャワー設備を設ける
- 歯科医院クリニックの待合診察室照明照度色温度
- 歯科医院クリニックの受付カウンターに商品棚
- 代替わり歯科医院併用住宅の診療所を改修リフォームか建替えか
- 歯科医院併用住宅の模様替え改修リフォーム計画
- 歯科医院併用住宅の改修リフォームの間取りプラン動線模様替え
- 歯科医院併用住宅の改修リフォーム順序方法と休診期間
- 歯科医院併用住宅の改修リフォーム工事の休院期間とお知らせ告知
- 歯科医院併用住宅の改修リフォームの爽やかな色彩カラー
- 歯科医院併用住宅の診察室の患者視線と医師視界と目隠し板壁
- 歯科医院併用住宅の診察室の天井を照らす間接照明
- 歯科医院併用住宅を上足か下足か改修リフォーム
- 内装解体で耐震壁位置歯科医院クリニック併用住宅改修リフォーム
- 歯科医院併用住宅の個室診察室を相談カウンセリング室
- 歯科医院併用住宅の看板サインリフォーム取り替え
- 歯科医院診療所病院併用住宅のカルテ収納棚
- 医院クリニック診療所病院併用住宅の照明光源の色温度
- 歯科医院併用住宅の手洗消毒技工台の特注造作と電源設備
- 歯科医院併用住宅の患者待合室の椅子ベンチ家具
- 歯科医院併用住宅の待合室診察室のテレビモニター
- 歯科医院併用住宅の風通しの良い明るい診察室
- 歯科医院併用住宅の診察台の位置寸法を原寸大図面で確認
- 歯科医院併用住宅のレントゲンX線室広さ寸法PC通線
- つくば子ども小児歯科医院クリニックの内装インテリア開院計画
- 小児歯科医院開院の賃貸物件テナント内装工事確認
- 小児歯科医院内装工事開業工程スケジュール
- 小児歯科医院の開業資金銀行融資相談資料
- 小児歯科医院の間取りプラン平面計画設計図
- 小児歯科医院の診察室内装デザイン設計図
- 小児歯科医院内装インテリアデザイン設計図
- 小児歯科医院の内装設備造作家具
- 歯科医院クリニック内装造作工事で特注品既製品で金額抑制
- 小児歯科医院の患者待合室コーナー
- 小児歯科医院の受付カウンターと商品棚
- 小児歯科医院のカルテ収納棚
- 小児歯科医院のカルテ記入台スペース
- 小児歯科医院の親子患者様用トイレ便所
- 小児歯科医院のキッズ子ども用診察台ユニット
- 小児歯科医院の汚れない内装仕上げ材料
- 小児歯科医院の床下配管設備工事
- 小児歯科医院の診察室診療中患者さんが眩しい天井照明
- 小児歯科医院の親子歯磨き指導用洗口台
- 小児歯科医院のX線室の室内寸法放射線遮蔽
- 小児歯科医院の患者様カウンセリング相談室
- 小児歯科医院のデンタル器具消毒洗浄室
- 小児歯科医院の医局スタッフルーム
- 小児歯科医院のコンプレッサーバキューム機器置場カバー
- 小児歯科医院の保健所診療所開設届出
- 小児歯科医院の上足下足と玄関仕上
- 小児歯科医院の患者様親子トイレにおむつ替え台
- 小児歯科医院の子ども用大便器洗面器洗口台
- 小児歯科医院の受付カウンター壁面グッズ商品棚
- 小児歯科医院の診察器具ワゴン収納
- 小児歯科医院の消毒室のスウィングウェスタン扉
- 小児歯科医院の待合室受付診察室区切る窓壁扉カルテ収納棚
- 新規小児歯科医院の内装設計図面の種類と作成
- 小児歯科医院の内装設計を模型でインテリア確認
- 小児歯科医院の木造建物床下基礎コンクリート断熱
- 小児歯科医院の診察台ユニット追加設置床下予備配管
- 小児歯科医院の医師先生が選んで購入家具
- 横浜二俣川の内科医院糖尿病クリニック診療所の開業内装設計工事
- 内科医院クリニックを開院する賃貸テナント内容条件確認
- 内科医院クリニックの間取りプランを検討作成して開院場所を決める
- 糖尿病内科クリニックの間取りプラン平面図
- 糖尿病内科医院の開院場所賃貸契約と内装設計業務契約
- 糖尿病内科クリニックの内装工事費の試算と銀行融資相談
- 糖尿病内科クリニックの内装インテリア間取りプラン設計図
- 糖尿病内科クリニックの内装工事金額見積依頼
- 糖尿病内科クリニックの内装工事契約締結
- 糖尿病内科クリニックの内装インテリア材料の選定
- 糖尿病内科クリニックの内装インテリア工事順序と期間
- 糖尿病内科クリニックの受付待合室に防犯カメラ設置
- 糖尿病内科クリニックの看護師さん職員さんの面接
- 糖尿病内科クリニックの看板サイン
- 糖尿病内科クリニックの診療所開設届申請
- 糖尿病内科クリニックの待合室
- 糖尿病内科クリニックの受付カウンターとカルテ棚
- 糖尿病内科クリニックの患者様車椅子トイレ
- 糖尿病内科クリニックの男性用小便器トイレ
- 糖尿病内科クリニックの検尿コップトイレ受付窓口
- 糖尿病内科クリニックの診察室幅奥行き寸法
- 糖尿病内科クリニックの採血検査処置室
- 糖尿病内科クリニックのスタッフルーム
- 糖尿病内科クリニックのレントゲンX線室の準備
- 糖尿病内科クリニックの床材料仕上げ材
- 糖尿病内科クリニックの診療器具用電源コンセント
- 糖尿病内科クリニックの設計図と工事金額見積依頼
- 糖尿病内科クリニックの工事金額見積り依頼と現場説明
- 糖尿病内科クリニックの内装工事中の開院案内
- 糖尿病内科クリニックのテナントビルの看板表示
- 賃貸建物建替えで歯科医院クリニック診療所の移転内装工事計画
- 歯科医院移転先テナントの内装状況確認
- 歯科医院を行う移転先既存内装を解体して分かること
- 歯科医院の外装整備と玄関扉引戸交換
- 歯科医院の2ユニット間取り設計図とインテリアデザイン
- 歯科医院の開院までの順序
- 歯科医院の上足下足で靴を滅菌スリッパに履き替える
- 歯科医院の待合室に透明ガラス面に透過ブラインド
- 歯科医院の待合室造作のポスターチラシ掲示板
- 歯科医院の受付カウンターの形と寸法
- 歯科医院のカルテ収納の位置と形
- 歯科医院の洗口洗面台と患者様スタッフ兼用トイレ
- 歯科医院のX線室放射線遮蔽扉を引戸
- 歯科医院の相談コーナーの目隠し可動間仕切り
- 歯科医院の診察室の作業台手洗いカウンター
- 歯科医院の診察室天井の間接照明
- 歯科医院の消毒技工作業コーナー
- 歯科医院の床下配管と床上げ下地
- 歯科医院のジーパンジーンズ地床材と阿波の青石床仕上げ
- 歯科医院の待合室診察室の照明の色温度
- 歯科医院の衛生設備器具の選定とショウルーム
- 歯科医院の歯科診療所の開設届と厚生局申請
- 精神科心療内科メンタルクリニックの開院内装設計図工事
- 精神科心療内科医院診察室の防音性能を確保内装壁面遮音間取りプラン
- 精神心療内科メンタルクリニック診察室の間仕切壁の防音性能向上内装設計図
- 心療内科精神科開院予定の賃貸テナント内装設備条件スケルトン確認
- 精神科心療内科医院メンタルクリニックの間取りプラン設計図
- メンタルクリニック心療内科精神科医院の診察室の患者用動線通路
- メンタルクリニック心療内科精神科医院の内装インテリアデザイン設計図
- メンタルクリニック心療内科精神科医院の玄関に自動ガラス引戸を設置
- メンタルクリニック心療内科精神科医院の受付カウンター寸法設計図
- 心療内科医院クリニックの受付背景待合室の内装デザイン壁面天井間接照明
- 心療内科医院クリニックの患者動線表現下り天井間接照明
- 精神科心療内科メンタルクリニックの待合室吸音床カーペット
- 精神科心療内科メンタルクリニックの待合室の椅子家具
- 心療内科医院の新型コロナウイルス感染症防止対策患者様用間取りプラン
- 精神科心療内科メンタルクリニック内装の患者様用扉引戸
- 保健所指導で精神科心療内科医院診察室処置室に手洗い台設置
- 精神科心療内科医院処置室手洗い台に電動排水ポンプを設置
- 精神心療内科医院メンタルクリニック内装工事金額の見積依頼
- 精神心療内科医院メンタルクリニック内装材料をパースとサンプルで選定
- 精神内科医院メンタルクリニックの診察室の防音間仕切区画壁の千鳥下地
- 街道道路に面する窓に精神内科医院クリニック開院お知らせ看板
- 精神科心療内科医院メンタルクリニック看板ロゴデザイン設計
- 精神心療内科医院メンタルクリニックの外部看板サインデザイン
- 内科小児科クリニック医院診療所の移転内装設計図工事
- 内科医院クリニックの内装設計開院計画を設計事務所に相談した理由
- 内科医院クリニックの患者スタッフの動線間取りプラン設計図
- 内科医院クリニックのトイレ手洗い間取り設計給排水配管ルート
- 内科医院クリニック待合室の内装インテリアデザインをパースで比較検討
- 医院クリニック内部ドア扉色を患者様スタッフ使用を色分け
- 内科医院クリニックのレントゲンX線室出入口を引戸
- 内科医院クリニックのレントゲンX線室放射線遮蔽の床壁天井内装
- 内科医院クリニックの道路側ガラス面待合室の日避け目隠しを縦型ブラインド
- 内科医院クリニックの空調エアコンを多重化分割設置
- 内科医院クリニックの内部汚染空気を排気する換気方法
- 内科医院クリニックの看板位置を歩行者から見える位置に設置
- 内科医院クリニックの間取り平面図を保健所事前相談診療所開設届
- 内科医院クリニックの段差のある出入り口の傾斜床
- 内科医院クリニックの内装工事開院のスケジュール期間
- 遠距離の医院クリニック設計ー心療内科精神科ショートケアクリニック
- 精神科心療内科医院クリニック開院計画開始の判断材料
- 精神科心療内科メンタルクリニックショートケアの間取りプラン設計図
- 精神科心療内科医院クリニック内装工事の現地調査確認
- 医院クリニック内装工事の開口窓西日避け対策縦型ブラインド
- 精神心療内科クリニック待合室に吉村順三デザインの「たためる椅子」を置く
- 医院待合室の個別「たためる椅子」に合わせた内装インテリアデザイン設計図
- 精神心療内科クリニック診察室の防音遮音壁扉内装工事の設計図
- 心療内科医院クリニック受付カウンターのデザイン形状高さ寸法と材料
- 心療内科医院クリニック診療所受付カウンターの壁面収納書棚
- 心療内科医院クリニック診療所の受付バックヤード事務作業室
- 精神科心療内科医院の診療室の間取りプラン2方向退避扉エスケープドア
- 医院クリニックのウイルス感染症拡大防止対策間取りプランと造作設備設計図
- 医院クリニックのウイルス除菌感染症拡大防止対策の手洗い洗面台
- 医院クリニックの手洗洗面台と手拭き紙ペーパーとゴミ入れ口
- 掃除しやすい洗面台とボウルが一体になっている汚れにくい手洗台カウンター
- 医院クリニック受付カウンターウイルス飛沫感染防止対策アクリルスクリーン
- 医院クリニックのウイルス感染症拡大防止対策の換気対策給気排気設備
- 医院クリニックウイルス感染症防止対策のリモートオンライン相談個室ブース
- 心療内科精神科医院クリニックの待合室の個別チェア「たためる椅子」
- 精神科心療内科医院クリニックの待合室診察室の照明設計
- 心療内科医院クリニックの待合室患者様動線の間接照明と扉仕上げ
- 部屋数の多い医院クリニックの空調エアコンの設置設計計画
- 精神科心療内科ショートデイケアクリニックの天井LED照明
- 医院クリニックショートケアセミナー室集会室の壁天井の吸音材設置
- 遠距離でも医院クリニック内装設計を設計事務所に依頼したメリット
◆東京成城「山口歯科医院」休院しない内装スケルトン改修リフォーム
- 代替り歯科医院改修リフォーム仮診療所移転改装工事再開院の設計方法
- 併用住宅だから出来た休院しない仮設診療所医院改装設計工事
- 休診しないで改装リフォームした歯科医院クリニック併用住宅
- 仮診療所のX線室レントゲン放射線遮蔽プレハブユニットボックス
- 住宅個室に診察ユニット台を移設して仮診療所開設配管配線準備工事
- 仮歯科医院診療所の診察台ユニット移設
- スケルトン改装リフォーム工事を行う既存木造医院内装解体
- 改装リフォームで撤去後の柱耐震壁木構造骨組み復旧補強設計工事
- 歯科医院スケルトンリフォームの内側断熱改修設計工事
- 医院クリニック診療所の細長い通路状待合室インテリアデザイン設計
- 歯科医院の待合室に手洗い洗口台を設ける間取りプラン設計
- 医院クリニック待合室に手洗い洗口室とトイレを分けて独立させたプラン設計
- 医院クリニックの受付カウンターの寸法と収納通信電気設備設計
- 医院クリニックの受付カウンター歯磨きブラシ商品グッズ陳列棚台設計
- 医院クリニック診療所の受付カルテ収納造作棚設計
- 医院クリニック診療所の受付をコンパクトな最小寸法カウンターにする
- 歯科医院クリニック個別診療手術室カウンセリングルーム
- 歯科クリニック個室カウンセリング診療手術室の設備とデザイン設計
- 歯科医院診察台ユニットの個室とワンルーム複数台の使い分け
- 歯科医院診察台ユニットの設置スペース寸法広さ設計
- 診察室ユニット台の患者さんが眩しくない折り上げ天井間接照明
- 歯科医院診察室診療台の患者さんが眩しくない天井間接照明造作設計
- 医院クリニック診療所の待合室診察室の照明色温度
- 歯科医院診療室の診察台ユニット間の目隠し隔て板設計
- 歯科医院の技工室の作業台シンク造作設計
- 医院クリニック手書きパソコン入力双方が利用するカルテ記入台
- 歯科医院クリニック診察室の手洗い作業台造作設計
- 除菌清掃しやすい医院クリニック診療所の内装仕上げ表面材料
- 汚れない掃除しやすい床材料ホモジニアスタイル複層塩化ビニールタイル
- 医院クリニックの内装仕上げ材料をサンプルとパースで検討決定
- 医院クリニックの壁にモザイクタイルを貼る演出設計
- 医院クリニックの内部扉の表面色彩を患者様とスタッフ用を区別する
- 医院クリニック診療所の診療室消毒室の電源コンセント設計
- 医院クリニック診療所の院内LANネット通信環境設備設計
- 汚れにくい洗面器手洗台を選んだ歯科医院クリニック改修リフォーム
- 成人対象感染症医院診療所クリニックの内装設計間取りプラン
- 医院クリニック内装を居抜きかスケルトン工事か現地確認判断
- 既存クリニック内装材料の再利用と解体撤去の判断設計工事
- 成人対象感染症診療クリニックの間取りプラン内装設計図
- ウィルス感染防止医院クリニックの除菌洗面手洗台の間取りプラン設計
- プライベート確保成人感染症診療クリニックの内装インテリアデザイン設計
- プライベート確保の医院クリニック待合室患者様カウンター隔板設計
- 成人対象感染症診療医院クリニックの内装インテリアデザイン設計
- 医院診療所の保健所開設届の間取りプラン事前相談確認
- 医院クリニックの尿検査コップ受け渡し小窓造作設計
- 医院クリニック待合室診察室の照明器具明るさ色温度
- 医院クリニックの電気電源コンセントの位置設計
- 医院クリニックの院内通信LANインターネット配信設備環境設計
- 医院クリニックの看板サイングラフィックデザイン
- 医院クリニック待合室のプライベート個別一人掛け椅子チェア
- 医院クリニック開院集客のホームページサイトデザイン設計製作
- 成人対象感染症診療医院クリニックの受付カウンター設計図
- 皮膚科クリニックの医療複合建物モールへ移転内装設計工事
- クリニック玄関出入口のガイドレール付き遮光ロールスクリーン
- 皮膚科クリニックの患者様用待合室手洗面台
- 皮膚科クリニックの待合室受付カウンター壁面開口
- 皮膚科クリニック待合室壁面の汚れ傷付き防止板材
- 皮膚科クリニックの自動車道路騒音の遮音防音壁面
- 皮膚科クリニックの各室空調エアコンと排水
- 皮膚科クリニックの給排気換気設備
- 皮膚科クリニックの将来追加配線対応用予備配管コンセント
- 代替わり地域密着内科医院クリニック併用住宅の休診しない建替え
- 内科医院クリニック併用住宅代替わりで休院しない建替え設計計画順序
- 内科医院クリニック併用住宅代替わりで建替え間取りプラン設計
- 木造総2階建ての勾配の無い屋根を金属板で葺く
- 医院クリニック併用住宅の建物外観色調デザイン仕上げ設計
- 内科医院クリニックの出入口を表す面格子と格子引き戸
- 内科循環器科医院クリニックの診療所名外部看板サイン
- 医院クリニック診療所のバリアフリー条例設計
- 内科医院の安心と安らぐ高天井吹抜待合室
- 内科クリニックの高天井吹抜待合室の照明
- 内科循環器科の高天井吹抜待合室の換気空調エアコン
- 内科医院クリニックの高天井吹抜待合室の吸音天井
- 内科医院の患者様待合室の掲示板
- 内科の患者様待合室の受付カウンター
- 内科医院の受付カウンター飛沫感染防止アクリル板
- 内科クリニックの患者様待合室のカルテ収納棚
- 医院クリニックの待合室の壁掛け大型モニター
- 医院クリニックの患者様待合室の椅子家具
- 内科医院クリニック検査処置室のレイアウト設計
- 内科医院併用住宅のスタッフ更衣室・収納室
- 内科医院宅の医療用廃棄物ゴミ保管置場
- 内科循環器科医院クリニック併用住宅のリビングデザイン設計
- 医院併用住宅の和室客間設計デザイン
- 医院併用住宅の和室客間床の間設計
- 医院併用住宅の和室客間床の間落とし掛け断面寸法設計
- 内科医院クリニック併用住宅の和室エアコン隠しガラリ
- 内科医院クリニック併用住宅の和室障子
- 内科医院クリニック併用住宅建替え既存窓枠保存移設
- 内科医院クリニックの工事金額見積工務店選定
- 内科医院クリニックの工事金額見積査定
- 内科医院クリニックの工事以外に必要な物品費用
- 内科医院クリニック併用住宅建替えの建築確認申請
- 大磯内科医院併用住宅建替えの地鎮祭
- 湘南大磯内科医院の建て方上棟
- 内科循環器科医院の地盤調査と地盤改良補強工事
- 内科医院建替えの内断熱設計工事
- 内科の電気電源通信配線LANコンセント
- 内科の照明色温度人感センサースイッチ
- 医院循環器科住宅の電気水道光熱費を子メーターを設置
- 内科循環器科医院クリニックのホームページ開設
- 内科循環器科医院クリニックに発熱外来隔離検査室を設置
- 東京練馬の木造2階建て替え新築歯科医院診療所デンタルクリニック
- 木造2階建て歯科医院診療所デンタルクリニックの新築建替え間取りプラン
- 歯科医院診療所デンタルクリニック建物外観ファサードデザイン
- 新築歯科医院の待合室受付カウンター
- 新築歯科医院の待合室の造作カルテ棚収納家具
- 新築歯科医院の待合室の患者様の椅子とキッズスペース
- 新築歯科医院の診療室照明目隠し消毒作業台収納造作
- 新築歯科医院の診療室の間接照明
- 新築歯科医院の診療室造作消毒作業台
- 新築歯科医院の個室診察室
- 新築歯科医院の2階の診療室
- 新築歯科医院診療所の滅菌消毒室
- 新築歯科医院の工事者工務店様選び
- 新築歯科医院の工事着工地鎮祭
- 新築歯科医院の地質地盤調査と地盤補強
- 新築歯科医院の基礎コンクリートの配筋検査
- 新築歯科医院の木造骨組み上棟建前建て方
- 新築歯科医院の金属屋根と内樋
- 新築歯科医院の内側断熱材発泡ウレタン樹脂吹付
- 新築歯科医院の診察台床下設備配管
- 新築歯科医院の外装外壁材選び
- 新築歯科医院の外観ファサードアルミサッシの幕板化粧貼り
- 医院診療所の床高さを周囲地面と同じ段差なし下足バリアフリー@新築歯科クリニック
- 新築歯科医院診療所の患者様用エレベーター
- 新築歯科医院診療所の歯科グッズ陳列棚

- 土地購入して新築した木造3階建歯科医院デンタルクリニック診療所設計
- 新築木造3階建歯科デンタルクリニック医院診療所の狭小敷地土地購入
- 新築歯科医院の歩道縁石の切下げと既存建物解体工事
- 新築狭小歯科医院の費用銀行融資相談資料
- 狭小敷地新築歯科医院の間取りプラン
- 新築歯科狭小医院診療所の待合受付精算機
- 新築狭小歯科医院の診療室設計
- 狭小新築歯科医院の診療台患者様が眩しくない天井間接照明
- 新築木造3階建歯科医院の保健所事前相談と診療所開設届
- 狭小新築木造3階建て歯科医院の住宅に見えない建物の外観外壁デザイン
- 狭小新築歯科医院の医院名看板サイン
- 木造3階建て新築狭小歯科医院の地鎮祭
- 木造3階建て狭小新築歯科医院の棟上げ上棟
- 狭小新築歯科医院の屋根外壁内側断熱ウレタン樹脂発泡材吹付
- X線レントゲン室の寸法と放射線遮蔽内装仕上
- 歯科医院併用住宅のレントゲンX線室広さ寸法PC通線
- 小児歯科医院のX線室の室内寸法放射線遮蔽
- 糖尿病内科クリニックのレントゲンX線室の準備
- 歯科医院のX線室放射線遮蔽扉を引戸
- 内科医院クリニックのレントゲンX線室放射線遮蔽の床壁天井内装
- 内科医院クリニックのレントゲンX線室出入口を引戸
- 休診しないで改装リフォームした歯科医院クリニック併用住宅
- 仮診療所のX線室レントゲン放射線遮蔽プレハブユニットボックス
- 整形外科医院のレントゲンX線室の開扉を引戸に取替え
- 大磯の調剤薬局店舗内装設計図と駐車場看板サイン歩道切下げ
- 調剤薬局店舗の建物正面外観ファサード看板デザイン設計図
- 調剤薬局店舗の患者様来客用駐車場スペースの舗装
- 調剤薬局店舗駐車場の歩道切下げ変更申請舗装ガードレール
- 調剤薬局店舗の内装間取りプラン設計図
- 調剤薬局店舗売場の経営と内装インテリアデザイン設計図
- 調剤薬局店舗の経営ブランディングと広報広告宣伝看板サイン
- 調剤薬局店舗のロゴデザイン看板サイングラフィック
- 調剤薬局店舗の保健所指導申請届出
- 調剤薬局店舗の健康相談と商品陳列壁面棚と説明表示
- 調剤薬局店舗の医薬品商品の陳列並べ方と売り方
- 調剤薬局店舗の処方箋受付会計カウンター
- 調剤薬局店舗の患者様健康相談カウンター
- 薬局店舗併用住宅の建物本体と内装が異なる設計者の区分調整
- 調剤薬局店舗内装工事の金額見積り依頼と施主支給品発注品の区別
- 調剤薬局店舗併用住宅の敷地傾斜でコンクリート高基礎と仕上
- 調剤薬局店舗売場のコンクリート高基礎の内側断熱材
- 調剤薬局店舗の売場商品用照明ライト
- 調剤薬局店舗の売場天井高さ
- 調剤薬局店舗の内装インテリア工事金額を安く抑えた工夫
- 調剤薬局店舗の内装インテリア仕上げ材料をサンプルを見て決める
- 調剤薬局店舗の出入口に金属庇を付ける
- 薬局店舗患者用出入口自動ドア窓扉単板ガラスに遮熱フィルム
- 調剤薬局店舗の出入口自動ドアガラスに薬局名と営業時間を表示
- 調剤薬局店舗の出入口窓の目隠しブラインド
- 調剤薬局店舗売場の商品棚カウンターと内装床壁天井の材料色彩
- 調剤薬局店舗の防犯ガラスフィルム警備カメラ設置
- 調剤薬局店舗の外部看板デザインと屋外広告物条例申請届出
- 調剤薬局店舗の内装インテリアデザイン化粧壁クロス仕上げ
- 処方箋調剤薬局店舗のインターネットホームページ集客の工夫
- 調剤薬局店舗併用二世帯住宅建替えの工程スケジュール順序期間
- 調剤薬局店舗売場の空調設備エアコンシーリングファン
- 旧耐震調剤薬局店舗を新耐震木造併用住宅に建替え
- 調剤薬局の建替え工事中に仮設薬局店舗を建てる
- 仮設調剤薬局建物を通常確認申請か許可申請か
- 建替え中の仮設建物調剤薬局店舗工事金額費用を安くする工夫
- 仮設調剤薬局店舗建物の工事順序
◆西宮「エコ薬局」第1種低層住居専用地域の調剤薬局
新築建替え医院診療所クリニックビル
◆東京練馬「かんけ歯科クリニック」歯科医院新築
◆横浜金沢「南横浜ファミリー歯科」歯科医院新築
◆湘南大磯「脇内科クリニック」医院併用住宅建替え
◆東京日野市「村上歯科医院」医院併用住宅 移転建替え
◆兵庫西宮「ますだ内科クリニック」胃カメラ消化器小児科
◆福島県いわき市「四倉あなだ歯科併用住宅」

◆鎌倉泉水橋「十二所調剤薬局」
◆湘南大磯「ことぶきや薬局」併用住宅建て替え
◆湘南大磯「ことぶきや薬局」仮設調剤薬局店舗
◆鎌倉泉水橋「医療クリニックモールビル」
◆南町田「クリニックビル1+2」
事務所オフィス・工場・倉庫
- 建物施設管理運営維持整備建替計画設計相談
- 工場施設建替修繕の将来全体計画設計図
- 工場生産機械施設なら免震構造建物
- 本社事務所ビル工場倉庫建替
- 本社支社事務所ビル建替検討
- 生産工場建替新築増築
- 倉庫車庫修繕改築移転建替
- 社員寮独身寮家族寮建替
- 保養所厚生施設維持管理建替
- 所有不動産賃貸ビルリフォーム建替え
設計実績
- 都市計画道路上の本社オフィスビル建物収用
- 本社オフィスビル建物の間取りプラン設計図
- 光熱費を安くする設計
- 日射しを和らげるエントランスホール
- 本社オフィスビル建物の外観デザイン設計
- らせん階段で結ばれている上下執務事務室
- オフィス事務所建物の壁面収納
- 本社オフィスビル建物の社員厚生室
- 絵画展示
- 汚れないトイレ
- サイン表示計画
- コンピューターサーバー免震装置
◆「東京市谷の企業独身寮」
- 「賃貸テナントビルも相談できますか?」
- 相続した土地活用相談
- 賃貸事務所ビル建替えの事業収支計画
- 賃貸事務所ビルの計画のお知らせと住民説明
- 賃貸事務所ビルの地質地盤調査
- 賃貸事務所ビルの既存建物解体工事
- 賃貸事務所ビルの建築確認申請図書と設計図面
- 設計図面で複数工務店様に工事金額見積依頼
- 賃貸事務所オフィスビルRC造4階の建替え工事金額見積と坪単価
- 賃貸事務所オフィスビル建替え工事見積金額の査定と調整
- 賃貸事務所オフィスビルの工事契約と地鎮祭
- 賃貸事務所オフィスビル仮設工事と近隣建物の家屋調査
- 賃貸事務所オフィスビルの杭打設工事の品質監理―改ざん防止
- 賃貸事務所オフィスビルRC造の施工図と鉄筋配筋検査監理
- 賃貸事務所オフィスビルRC造4階の上棟
- 賃貸事務所オフィスビル外観正面外装仕上の検討決定
- 賃貸オフィスビル内装仕上材設備の検討決定
- 賃貸事務所オフィスビル出入口ホールデザイン仕上材検討
- 賃貸事務所オフィスビルの工事完成引渡し
- 工場事務所オフィスの耐震診断で移転建替え
- 工場事務所オフィスの間取りプランと構造種別
- 工場事務所オフィスの外観ファサードデザイン色彩計画
- 工場事務所オフィスの設計図と確認申請
- 工場事務所オフィスの工事金額見積比較査定
- 工場事務所オフィスの鉄骨造建築コスト坪単価工事費相場
- 工場事務所オフィスの地質地盤ボーリング調査
- 工場事務所オフィスの工務店決定請負契約と地鎮祭
- 工場事務所オフィスの杭工事品質現場監理
- 工場事務所オフィスの鉄骨製作工場検査と建て方上棟
- 工場事務所オフィスのRC地中梁構造配筋検査
- 工場事務所オフィスの地中梁構造コンクリート打設品質監理
- 工場事務所オフィスの防犯設備計画
- 工場事務所オフィスの外壁ALC板と内断熱吹付発泡ウレタン
- 工場事務所オフィスの金属折板屋根
- 工場事務所オフィスの家具配置とコンセント電気設備
- 工場事務所オフィスの外壁社名ロゴ看板サイン
- 工場事務所オフィスの案内表示看板サイン
- 工場事務所オフィスの空調エアコン設備
- 工場事務所オフィスの照明器具配置と色温度
- 工場事務所オフィスの電話ネット通信設備引込み移転
- コルビュジェのドミノシステムで工場事務所を建てる
- 工場事務所オフィスの応接室家具ソファと内装
- 工場事務所オフィストイレの汚れにくい内装材料と照明
- 工場事務所オフィスのガレージ車庫ピロティ
◆「千葉の事務所オフィスの改修工事」
◆その他の事務所オフィスの改修工事
和風住宅・和風店舗
設計実績
- 昭和初期和風二世帯住宅の耐震断熱改善の建替え
- 和風二世帯住宅の間取りプラン上下左右配置位置
- 和風二世帯住宅の数寄屋外観屋根デザイン
- 和風二世帯住宅の床柱欄間障子材料再利用
- 和風二世帯住宅建替えの既存建物解体工事再利用造作部材
- 和風外観数寄屋住宅の既存建物屋根瓦の保存解体再利用
- 和風二世帯住宅の工事金額概算見積金額
- 和風二世帯住宅の詳細実施設計図と確認申請図
- 和風建築二世帯住宅の外観外装数寄屋意匠デザイン
- 和風二世帯住宅の工事金額見積依頼と査定
- 和風建築二世帯住宅の和室内装床の間書院デザイン
- 和風建築二世帯住宅の地鎮祭
- 和風建築二世帯住宅の地縄で建物位置確認
- 和風建築二世帯住宅の地盤調査と地盤改良
- 和風数寄屋二世帯住宅の屋根庇軒先意匠デザイン
- 和風二世帯住宅のバルコニーFRP防水と排水
- 和風二世帯住宅の基礎鉄筋配筋検査とコンクリート打設
- 和風二世帯住宅の木造構造プレカット施工図
- 和風二世帯住宅の木造建て方上棟
- 和風二世帯住宅の内断熱発泡ウレタンと省エネ対策
- 和風二世帯住宅の防犯対策
- 和風二世帯住宅の外構庭玄関踏石畳みアプローチ
- 和風二世帯住宅の既存靴脱ぎ石の縁側再利用
- 和風二世帯住宅の外構庭の手入れと芝生砂利舗装
- 和風外観数寄屋住宅の金属板葺き屋根
- 和風外観数寄屋住宅の外壁塗り壁仕上げ
- 和風数寄屋二世帯住宅の樋の無い軒先の屋根雨水排水処理
- 夏至冬至太陽南中高度角度と和風住宅縁側の軒先庇と日当り
- 和風数寄屋二世帯住宅の和室雪見障子
- 和風数寄屋二世帯住宅の庭眺めを楽しむ縁側深庇
- 和風二世帯住宅の玄関下駄箱と収納
- 和風数寄屋住宅の玄関引戸と照明
- 和風数寄屋和室内装仕上材をサンプルで確認
- 和風数寄屋和室床の間の床柱落し掛け寸法
- 和風二世帯住宅の神棚
- 和風二世帯住宅の仏間仏壇
- 和風数寄屋二世帯住宅の明かり照明
- 和風数寄屋二世帯住宅の隠蔽型エアコン
- 和風二世帯住宅の風通しの良い和室床琉球畳引戸間仕切
- 和風二世帯住宅の外壁窓サッシの開き勝手複層ガラス樹脂窓
- 和風応接室の家具選び
- 和風二世帯住宅の箪笥タンスを継続利用する
- 和風二世帯住宅の工事金額費用坪単価相場
- 和風二世帯住宅に自宅勤務用書斎机サテライトテレワークスペース
- 和室床の間書院をサテライトテレワーク自宅勤務用書斎スペースに
- 医院併用住宅の和室客間設計デザイン
- 医院併用住宅の和室客間床の間設計
- 医院併用住宅の和室客間床の間落とし掛け断面寸法設計
- 内科医院クリニック併用住宅の和室エアコン隠しガラリ
- 内科医院クリニック併用住宅の和室障子
商業店舗・飲食店・販売店・温浴施設
- 店舗や飲食店の内装の雰囲気を確かめてから内装造り
- 店舗の内装にこだわる
- 思い切った商品の見せ方
- 用途変更の手続きが必要と言われた
- 高級店舗外装内装集客設計デザイン
- 集客繁盛店舗内装設計デザイン
- 和風の店舗・内装にしたい
設計実績
◆「船橋商業ビル」用途変更
- 物販店舗建物を飲食店舗賃貸物件に用途変更
- 用途変更確認申請が可能かどうかの確認と手順番流れ
- 用途変更建築確認申請の着手前に確認しておくべき内容や条件
- 用途変更確認申請に関連する法律条例規制基準
- 用途変更確認申請を行う既存建物の現地確認調査
- 用途変更確認申請の関係法令役所協議確認
- 用途変更確認申請の構造設計耐荷重条件の変更と確認
- 既存建物の屋上広告塔の取り扱いと撤去
- 店舗内の上下階段を撤去して吹抜けに床を設置する増築申請
寺院・神社・墓 納骨堂
- 新しい墓地納骨堂計画許可申請と合同埋葬墓設計
- 合同埋葬納骨堂墓所の設計デザイン
- 納骨堂合同埋葬墓所の屋根庇による建物外壁保護の設計
- 墓所合同埋葬納骨堂の屋根トップライト光による拝礼演出
- 合同埋葬納骨堂墓所の外壁杉板コンクリート打放し仕上
- 納骨堂合同埋葬墓所の拝礼献花台
- 墓所合同埋葬納骨堂の卒塔婆置き
- 合同埋葬納骨堂墓所の施設名称サイン
- 墓所合同埋葬納骨堂の地盤調査と杭地業地盤改良
- 納骨堂合同埋葬墓所の囲障コンクリートブロック壁手摺
- 合同埋葬納骨堂墓所の開眼供養
- 鉄筋コンクリート造納骨堂の屋根防水と水切り
- 合同埋葬納骨堂墓所の愛玩動物ペットの墓地
公共施設・学校

- 大学施設キャンパス内の体育館と地下温水プールの建替え設計と工事監理のお手伝い
- 大学キャンパス施設の新教室棟と体育館の工事前の地鎮祭
- 工事現場の製作図・施工図の重要性と設計図面内容を工事者に伝える
- 大学施設の地下室内プール建設工事の地下外壁地中土留め連続擁壁SMW
- 地下プールコンクリート構造躯体土留め仮設擁壁SMW外壁防水止水
- 地下コンクリート建築物の地下防水止水と湧水集水排水
- 地下コンクリート建築物外壁防水の種類と工法と効果
- 地下室コンクリート建物構造が地上建物より高額工事費用になる理由
- RCコンクリート躯体構造の表面打ち増しフカシ寸法
- 地下RCコンクリート造打継ぎ止水防水は水膨張材か成形材か
- 地下水排水対策用外壁二重壁基礎ピット排水釜場ポンプ点検口
- 大学地下屋内プール施設の大空間PCプレキャストコンクリート大型梁
- 大学地下屋内プールの大空間を支える壁状せい高PC梁
- 大学キャンパス体育館施設耐火建築物の鉄骨部材耐火被覆塗料
- 体育館S造鉄骨ブレース構造のメリットデメリット
- 大学キャンパス施設の隣接大小建物の外装外壁磁器質タイル統一デザイン
- 大学キャンパス体育館施設の平坦金属屋根庇先端雨樋の形状デザイン収まり
- 大学キャンパス体育館施設の外装外壁タイル貼りとアルミ金属パネル仕上
- 大学キャンパス体育館のエントランスホール前を覆う長大屋根庇
- 外部屋根大庇軒裏を照らす壁面アッパーブラケット間接照明
- 外壁押出成形セメント板下地磁器質タイル伸縮目地シール
- 大学体育館プール建物のエントランスホール中間領域空間デザイン
- 大学校キャンパス体育館施設の靴脱ぎ場下駄箱と上下足履き替え
- 学校キャンパス体育館内通年利用の地下階屋内温水プール設計
- 学校体育館地下屋内プールの耐水耐湿防錆吸音床壁天井仕上げ材料
- 大学キャンパス体育館施設の地下屋内温水プールのカビ防止対策
- 大学キャンパス地下屋内温水プール錆びない材料電気照明器具
- 学校キャンパス体育施設の地下屋内温水プール大空間照明設計計画
- 学校キャンパス体育館施設の地下屋内温水プール滑りにくい床材料
- 大学校体育館施設の地下屋内温水プール底面の上下可動床システム
- 大学キャンパス体育館施設の地下屋内温水プールの音響吸音材設計
- 学校体育館の地下屋内プールのFRPプール防水とヤマハ管楽器
- 大学体育館施設の地下屋内温水プール更衣室の位置と工夫設計
- 大学体育館施設の地下屋内温水プールの消毒シャワー・洗眼器
- 地下屋内温水プールの消毒シャワー自立壁にモザイクタイルを貼る
- 地下屋内温水プール照明器具をステンレス埋め込みボックスに設置
- 地下屋内温水プールの扉壁点検口をタイルを貼って目立たなくする
- 大学キャンパス体育館施設の地下屋内温水プールの色彩デザイン
- 大学キャンパス体育館施設の地下屋内温水プール教員監視室
- 大学キャンパス体育館の球技競技種類と広さ大きさ寸法
- 大学校キャンパススポーツ体育館施設の採光と照明設備設計
- 大学校内の体育館スポーツ施設の空調エアコン換気設計
- 大学キャンパス体育館施設の防音吸音音響設計
- 大学キャンパス体育館施設の吸音壁天井穴開き有孔板材パネル
- 学校体育館施設のフロア床下地と床衝撃緩和
- 大学校スポーツ体育館施設の防球ネット
- 大学校体育館スポーツ施設の壁面取り付けバスケットゴール
- 大学キャンパス体育館スポーツ施設の内装床壁天井材料
- 大学キャンパス体育館スポーツ施設の床スポーツ競技用コートライン
- 大学キャンパス体育館施設の壁面の吸音性能と球技の耐衝撃ボード
- 大学キャンパス体育館施設の球技競技のための耐衝撃壁面と防球ネット
- 大学体育館施設の内部壁面コンクリート打放しと鉄扉建具枠納まり
- 大学校体育館施設の鉄骨避難階段段床材料すべり止めと天井手摺照明
- 大学校スポーツ体育館プール施設汚れにくいシャワー室内装ブース
- 大学キャンパス体育館プールの汚れにくいトイレ便所洗面所の設計
- 大学キャンパス体育館施設メンテナンスフリー長寿命材料選定設計
- エレベーター会社様を選ぶ工事費用とメンテナンス費用
- 大学キャンパス体育館プール施設のバリアフリーユニバーサル条例
- 体育館プール施設の車椅子利用エレベーター多目的トイレ引戸
- 大学キャンパス体育館プール施設の長寿命の輸入床材長尺塩ビシート
- 大学キャンパス体育館屋内プールスポーツ施設建物の照明計画設計
- 大学キャンパス体育館プール施設の装飾凹凸のないシンプルデザイン
- 大学キャンパス体育館プール施設の内装仕上材料素材色彩デザイン
- 大学キャンパス体育館プール施設の扉の存在を無くすデザイン
- 大学キャンパス体育館プール建物の特定防火設備網無し透明耐火ガラス
- 大学キャンパス体育館プール施設の案内誘導室名サイン表示
- 大学キャンパス体育館プール地下施設のドア扉の色彩化粧仕上げ
- 大学キャンパス体育館プール施設建物の保健所検査
- 大学キャンパス体育館プール建物のポスターチラシ壁面表示掲示板
- 国道1号線不動坂交差点に架ける歩道橋にエレベーターシャフト建屋
- 誰もが利用出来るバリアフリー歩道橋エレベーターEV設置
- 歩道橋に車椅子と自転車が乗れるエレベーターEV
- メンテナンス修繕をなくす設計工夫@歩道橋エレベーターEVシャフト建屋
- 歩道橋エレベーター建屋で故障を起きにくくする工夫設計
- 歩道橋エレベーター建屋の屋根・防水
- 歩道橋エレベーター建屋の汚れにくい外壁板と塗装
- 歩道橋エレベーター建屋の汚れにくい外壁のための水切り庇
- 歩道橋エレベーター建屋の汚れを隠す凹凸断面のセメント板
- 歩道橋エレベーター建屋の雨水の防水浸入防止
- 歩道橋エレベーター建屋の排熱換気通気
アパート併用住宅・医院兼用住宅
設計実績
ガレージ駐車場付・倉庫付・医院付・薬局付・複合建築物
- 商品在庫倉庫付き物品販売店舗の荷物用EV間取りプラン設計図
- 駐車場ガレージシャッター付き混構造3階建住宅
- 大型車輌駐車庫付きピロティ型事務所オフィス
- 第一種低層住居専用地域で調剤薬局店舗付き内科医院診療所クリニック
- 土地購入して賃貸アパート付き住宅木造耐火建築を住宅ローンで建てる
- アトリエ工房付きギャラリー展示場付き彫刻家住宅
- 帰郷して再開院する借地歯科医院付き住宅の間取りプラン
- 調剤薬局付き二世帯住宅の仮店舗営業と建替え
- 都市計画道路収用による歯科医院付き住宅の建替え移転
在宅勤務の書斎仕事場・リモートテレワークルーム・サテライトスペース
- 木造3階建住宅リビング書斎テレワークサテライトスペース勉強机
- 木造住宅のロフトにテレワークサテライトスペース自宅勤務書斎
- 和風二世帯住宅に自宅勤務用書斎机サテライトテレワークスペース
- 和室床の間書院をサテライトテレワーク自宅勤務用書斎スペースに
- 二世帯住宅に自宅勤務サテライトテレワーク用事務机仕事スペース
- 木造3階建住宅にサテライトテレワーク自宅勤務用書斎机スペース
- 賃貸アパートにサテライトテレワーク在宅勤務事務机とLDK間仕切を設ける
地下建築物
- 地下屋内プール建設工事の地下外壁地中土留め連続擁壁SMW
- 地下プールコンクリート構造躯体土留め仮設擁壁SMW外壁防水止水
- 地下コンクリート建築物の地下防水止水と湧水集水排水
- 地下コンクリート建築物外壁防水の種類と工法と効果
- 地下室コンクリート建物構造が地上建物より高額工事費用になる理由
- 地下RCコンクリート造打継ぎ止水防水は水膨張材か成形材か
- 大学キャンパス体育館施設の地下屋内温水プールのカビ防止対策
- 豊洲の盛土と地下空洞ー建築家の疑問
改修リフォーム・大規模修繕・耐震改修
リフォームのコスト
- マンションリフォーム費用料金を安くする
- リフォーム金額を安くする設計と見積
- リフォーム工事の変更追加精算方法
- マンションリフォームの工事費用は部屋ごとに見積ると無駄がない
- 歯科医院内装リフォームを安く収める
設計実績
- リフォーム金額を安くする設計と見積
- リフォーム工事会社を選ぶ方法条件
- リフォーム工事の変更追加精算方法
- リフォームしてないようなリフォーム
- 防犯窓の取替
- 玄関扉の防犯カギ取替
- 天井吊りペンダント照明
- エアコン取替ネット購入
- ステンドグラス窓を綺麗に見せる
- 視線を遮断する植栽窓フィルムカーテン
- 箱根仙石原貸別荘民泊一棟貸し宿スケルトン改修リノベーションリフォーム
- 箱根の民泊貸別荘の改修でLDKをワンルームにする
- 箱根の民泊貸別荘の改修で外部緑の眺望を楽しむ開口窓サッシ
- 箱根の民泊貸別荘の改修で眺望豊かな露天温泉風呂
- 箱根の民泊貸別荘の改修の断熱除湿結露カビ対策
- 家族構成が変わって終の住処にするためのRCマンション改修リフォーム
- 家族構成の変化によるマンションリフォーム設計図
- 模様替え間取り変更のマンション改修リフォーム
- マンションリフォームの工事費用は部屋ごとに見積ると無駄がない
- マンションリフォーム収納ウォークインクローゼットの賢い利用方法
- 玄関リビング階段壁面にニッチ棚飾り棚を設ける
- マンションリフォームで断熱遮熱防音インナーサッシ二重窓
- マンションリフォームでトイレの大便器をショウルームで選ぶ
- マンションリフォームで風呂ユニットバスの壁面を防音遮音仕様にする
- マンションリフォームで個室寝室を防音遮音仕上げ室にする
- マンションリフォームで建材のアレルギーを工事前に直接実体験して判別
- エコカラットモザイクタイルの吸収効果と壁面に貼るアクセントデザイン
- WIC収納部屋の扉と引戸を壁の様に見せる太鼓貼りと引き手金物
- 横浜木造2階建て住宅のスケルトンリフォームリノベーション
- 木造2階建て住宅内装リフォームの遠距離設計
- 住宅スケルトンリフォーム解体撤去構造骨組み補強内装設計
- 住宅リフォームの玄関扉内部建具扉のダイノックシート巻き
- 和室にキッチン移しリビング広げた住宅リフォーム間取り設計
- 戸建て住宅リフォームで小型仏壇を置く造作家具棚設計
- 階段縦型格子状壁面手摺の木造住宅リフォームリノベーション
- 天井撤去梁小屋組露出した吹抜け天井間接照明住宅リフォーム
- 女性用個室寝室の化粧前鏡ドレッサー造作家具設計
- 住宅リフォームの収納押入クローゼットの模様替え可動棚
- 大画面壁掛けTVモニターの壁下地と電気配線住宅リフォーム
- 住宅リフォームの洗濯機取替えゴミ取りボックスかさ上げ脚台
◆「千葉の事務所オフィスの改修工事」
◆「横浜のマンション大規模修繕」
◆「上大岡の鉄骨3階建賃貸アパートの改修工事」
◆「船橋商業ビル」用途変更
- 物販店舗建物を飲食店舗賃貸物件に用途変更
- 用途変更確認申請が可能かどうかの確認と手順番流れ
- 用途変更建築確認申請の着手前に確認しておくべき内容や条件
- 用途変更確認申請に関連する法律条例規制基準
- 用途変更確認申請を行う既存建物の現地確認調査
- 用途変更確認申請の関係法令役所協議確認
- 用途変更確認申請の構造設計耐荷重条件の変更と確認
- 既存建物の屋上広告塔の取り扱いと撤去
- 店舗内の上下階段を撤去して吹抜けに床を設置する増築申請
◆「横浜の賃貸マンションの大規模修繕改修工事」
- 賃貸マンションの一年毎点検による屋根外壁窓サッシ経過診断検査
- 賃貸マンション大規模改修工事を行うための定期検診と見極め判断
- 大規模マンション改修工事の見積金額費用と工事範囲の検討
- 賃貸マンション大規模改修工事見積金額の査定比較確認
- 賃貸マンション大規模改修の工事監理と検査
- マンション大規模改修工事で屋根防水外壁タイル塗装の劣化
- 賃貸マンション大規模改修後1年点検
◆「東京事務所建物の地下駐車場用途変更」
◆九州福岡博多賃貸テナントビル事務所を飲食物販店舗に用途変更
- 九州福岡博多賃貸テナントビル事務所を飲食物販店舗に用途変更
- 建物位置と設計者が遠く離れた用途変更確認申請遠距離設計
- 用途変更確認申請に必要な図書確認済書検査済書構造計算書
- 事務所を飲食店舗物販店舗に用途変更で申請が必要な福祉まちづくり条例
- 事務所から飲食店舗物販店舗に用途変更する建築確認申請
- 事務所から飲食店舗物販店舗に用途変更する消防法設備申請
◆「相模原の軽量鉄骨造2階建賃貸アパートの屋根外壁修繕改修工事」
◆千葉船橋の大規模修繕改修工事タイミング発注方式工事者選定説明会
◆東京の旧耐震鉄筋コンクリートRCマンション耐震診断補強建替構造
用途変更・許可申請・定期調査報告
- 大型住宅を独身寮に用途変更
- 用途変更申請手続きとRC造耐震診断
- 埋蔵文化財調査と手続き
- 整骨院・デイケア福祉施設の開院内装工事で用途変更@三鷹
- デイケア福祉施設のバリアフリー条例の手続と工事@三鷹
- 藤巻歯科医院の保健所届出
- 調剤薬局の建替え工事中に仮設薬局店舗を建てる
- 仮設調剤薬局建物を通常確認申請か許可申請か
- 第1種低層住居専用地域に調剤薬局を設ける許可申請
- 道路内の三角形敷地に駐車場管理事務所を建てる許可申請
- 市街化調整区域内のグループホーム建物の用途変更許可申請
- 日中サービス支援型グループホーム寄宿舎への用途変更許可申請
- 賃貸オフィスビルの階段増築確認申請
- 事務所を物販店舗に用途変更確認申請
- 賃貸事務所ビルの計画のお知らせと住民説明
- 賃貸事務所ビルの建築確認申請図書と設計図面
- 賃貸事務所オフィスビル仮設工事と近隣建物の家屋調査
- 公衆浴場温浴施設の届出許可申請
- 一級建築士による物販店舗の建築基準法定期調査報告書
- 和風二世帯住宅の計画変更手続きと軽微な変更届出
- 物販店舗建物を飲食店舗賃貸物件に用途変更
- 用途変更確認申請が可能かどうかの確認と手順番流れ
- 用途変更建築確認申請の着手前に確認しておくべき内容や条件
- 用途変更確認申請に関連する法律条例規制基準
- 用途変更確認申請を行う既存建物の現地確認調査
- 用途変更確認申請の関係法令役所協議確認
- 用途変更確認申請の構造設計耐荷重条件の変更と確認
- 既存建物の屋上広告塔の取り扱いと撤去
- 店舗内の上下階段を撤去して吹抜けに床を設置する増築申請
- オフィス事務所建物の地下駐車場部分を倉庫に用途変更
- 駐車場整備地区の用途変更で附置義務駐車場を隣地隔地移設申請
- 附置住宅制度条例解除による事務所オフィスへの確認申請出来ない用途変更
- 横浜中華街店舗複合ビルの公衆浴場(岩盤浴)から飲食店舗に用途変更
- マンション集合共同住宅の一部を児童福祉施設に用途変更確認申請
- 世田谷複合ビルパチンコ遊技場店舗をゴルフシュミレーション練習場に用途変更確認申請
- 東京世田谷パチンコ店をゴルフ練習場に用途変更バリアフリーユニバーサル条例申請
- 日本橋の複合ビルで用途変更し地区計画容積率緩和を受ける検証
- 九州福岡博多賃貸テナントビル事務所を飲食物販店舗に用途変更
- 建物位置と設計者が遠く離れた用途変更確認申請遠距離設計
- 用途変更確認申請に必要な図書確認済書検査済書構造計算書
- 事務所を飲食店舗物販店舗に用途変更で申請が必要な福祉まちづくり条例
- 事務所から飲食店舗物販店舗に用途変更する建築確認申請
- 事務所から飲食店舗物販店舗に用途変更する消防法設備申請
定期調査報告
市街化調整区域内の建築計画
構造・耐震・免震・木造・鉄筋コンクリート造・鉄骨造
- 鉄筋コンクリートの改修保存と建替復元—関東学院中学校旧本館
- マンション杭施工不良データ改ざん防止対策
- 地震に強く倒れない建物-熊本大地震
- 豊洲の盛土と地下空洞ー建築家の疑問
- 東京の旧耐震鉄筋コンクリートRCマンション耐震診断補強建替構造
設計実績
- 傾斜地に建つ古い建物で耐震補強
- ガレージ車庫RC造・住宅木造で混構造設計
- 地震に強い家(耐震強度等級2)
- 賃貸事務所ビルの地質地盤調査
- 賃貸事務所オフィスビルの杭打設工事の品質監理―改ざん防止
- 賃貸事務所オフィスビルRC造の施工図と鉄筋配筋検査監理
- 賃貸事務所オフィスビルRC造4階の上棟
- 医院併用住宅の土台基礎コンクリートの配筋検査
- 医院併用住宅の木造部分の施工図
- 医院併用住宅の基礎コンクリート打設
- 医院併用住宅の上棟準備:土台敷き
- 医院併用住宅の上棟
- 工場事務所オフィスの地質地盤ボーリング調査
- 工場事務所オフィスの杭工事品質現場監理
- 工場事務所オフィスの鉄骨製作工場検査と建て方上棟
- 工場事務所オフィスのRC地中梁構造配筋検査
- 工場事務所オフィスの地中梁構造コンクリート打設品質監理
- 和風建築二世帯住宅の地盤調査と地盤改良
- 和風二世帯住宅の木造構造プレカット施工図
- 和風二世帯住宅の基礎鉄筋配筋検査とコンクリート打設
- 和風二世帯住宅の木造建て方上棟
- 内装解体で耐震壁位置歯科医院クリニック併用住宅改修リフォーム
- 木造2階建て賃貸アパートの地盤調査と地盤補強杭打設
- 木造2階建て賃貸アパートの基礎コンクリート配筋検査
- 木造2階建て賃貸アパートの木造骨組み建て方上棟
- 大学施設の地下室内プール建設工事の地下外壁地中土留め連続擁壁SMW
- 地下プールコンクリート構造躯体土留め仮設擁壁SMW外壁防水止水
- 地下コンクリート建築物の地下防水止水と湧水集水排水
- RCコンクリート躯体構造の表面打ち増しフカシ寸法
- 大学キャンパス体育館施設耐火建築物の鉄骨部材耐火被覆塗料
- 体育館S造鉄骨ブレース構造のメリットデメリット
- RC造建屋建替えで既存重量より軽量化設計工夫
- RC造屋根建替えをアルミハニカムパネルで軽量化設計工夫
- 新築歯科医院の基礎コンクリートの配筋検査
- 新築歯科医院の木造骨組み上棟建前建て方
- 木造3階建て狭小新築歯科医院の棟上げ上棟
地盤調査・杭・地盤補強工事
- 工場事務所オフィスの杭工事品質現場監理
- マンション杭施工不良データ改ざん防止対策
- 賃貸事務所オフィスビルの杭打設工事の品質監理―改ざん防止
- 内科循環器科医院の地盤調査と地盤改良補強工事
- 墓所合同埋葬納骨堂の地盤調査と杭地業地盤改良
- 新築歯科医院の地質地盤調査と地盤補強
防水・排水・除湿
- 湿度が高くてカビ臭い−箱根の別荘
- 水はけの悪い敷地のゲリラ豪雨排水対策−横浜の2世帯住宅
- ゲリラ豪雨や台風大雨洪水の家住まいの雨水防水対策
- 排水管ポンプを新設してトイレと手洗設置@精神科医院
- 歯科医院の診察室の床下配管と上げ床
- 歯科医院の床下配管設備工事
- 小児歯科医院の診察台ユニット追加設置床下予備配管
- 鉄骨造3階建て賃貸アパートバルコニー屋根防水雨漏修理改修
- 大学施設の地下室内プール建設工事の地下外壁地中土留め連続擁壁SMW
- 地下プールコンクリート構造躯体土留め仮設擁壁SMW外壁防水止水
- 地下コンクリート建築物の地下防水止水と湧水集水排水
- 地下コンクリート建築物外壁防水の種類と工法と効果
- 地下室コンクリート建物構造が地上建物より高額工事費用になる理由
- 地下RCコンクリート造打継ぎ止水防水は水膨張材か成形材か
- 大学キャンパス体育館施設の地下屋内温水プールのカビ防止対策
- 大学キャンパス地下屋内温水プール錆びない材料電気照明器具
- 大学体育館施設の地下屋内温水プール更衣室の位置と工夫設計
- 地下水排水対策用外壁二重壁基礎ピット排水釜場ポンプ点検口
- 雨漏り修理防水材アスファルトかFRPかウレタン塗布防水か
- 木造屋根バルコニー床の雨漏り止水修理防水設計工事
- 台風漏水インナーバルコニートップライト外壁サッシ窓雨漏修繕
- 地下鉄出入口階段上屋でゲリラ豪雨水洪水流入防止対策
- 鉄筋コンクリート造納骨堂の屋根防水と水切り
- 新築歯科医院の診察台床下設備配管
防音・吸音・遮音・音響
- 防音の音楽音響室・映画鑑賞室・カラオケルーム
- 寝室を防音にしたい−箱根の別荘
- 寝室を防音室にする−いわき歯科医院併用住宅
- 電車の振動と騒音対策−立川ロフト付アパート併用住宅
- 防音遮音性能を高める@精神心療内科医院
- メンタルクリニックのプライベート防音感覚
- マンションリフォームで風呂ユニットバスの壁面を防音遮音仕様にする
- マンションリフォームで個室寝室を防音遮音仕上げ室にする
- マンションリフォームで断熱遮熱防音インナーサッシ二重窓
- 木造アパート住戸間の防音遮音界壁区画壁床の千鳥下地グラスウール充填
- 学校体育館地下屋内プールの耐水耐湿防錆吸音床壁天井仕上げ材料
- 大学キャンパス体育館施設の地下屋内温水プールの音響吸音材設計
- 大学キャンパス体育館施設の防音吸音音響設計
- 大学キャンパス体育館施設の吸音壁天井穴開き有孔板材パネル
- 学校体育館施設のフロア床下地と床衝撃緩和
- 精神科心療内科医院診察室の防音性能を確保内装壁面遮音間取りプラン
- 精神心療内科クリニック診察室の防音遮音壁扉内装工事の設計図
- 医院クリニックショートケアセミナー室集会室の壁天井の吸音材設置
断熱・遮熱・保温・蓄熱
- 別荘の断熱材性能改修して冬暖かくする
- 光熱費を安くする設計
- 工場事務所オフィスの外壁ALC板と内断熱吹付発泡ウレタン
- 和風二世帯住宅の内断熱発泡ウレタンと省エネ対策
- 小児歯科医院の木造建物床下基礎コンクリート断熱
- 調剤薬局店舗売場のコンクリート高基礎の内側断熱材
- 薬局店舗患者用出入口自動ドア窓扉単板ガラスに遮熱フィルム
- マンションリフォームで断熱遮熱防音インナーサッシ二重窓
- 新築歯科医院の内側断熱材発泡ウレタン樹脂吹付
- 狭小新築歯科医院の屋根外壁内側断熱ウレタン樹脂発泡材吹付
太陽光発電パネル・エネファーム
アレルギー対策
建物の感染症拡大防止対策
- 心療内科医院の新型コロナウイルス感染症防止対策患者様用間取りプラン
- 内科医院クリニックの内部汚染空気を排気する換気方法
- 保健所指導で精神科心療内科医院診察室処置室に手洗い台設置
- 医院クリニックのウイルス感染症拡大防止対策間取りプランと造作設備設計図
- 医院クリニックのウイルス除菌感染症拡大防止対策の手洗い洗面台
- 医院クリニック受付カウンターウイルス飛沫感染防止対策アクリルスクリーン
- 医院クリニックのウイルス感染症拡大防止対策の換気対策給気排気設備
- 医院クリニックウイルス感染症防止対策のリモートオンライン相談個室ブース
- 心療内科精神科医院クリニックの待合室の個別チェア「たためる椅子」
建築材料の保存再生利用・解体工事
- 賃貸事務所ビルの既存建物解体工事
- 既存寿司飲食店舗和風材料の再利用
- 昭和レトロの既存和室内装を再利用する
- 和風二世帯住宅の床柱欄間障子材料再利用
- 和風二世帯住宅建替えの既存建物解体工事再利用造作部材
- 和風外観数寄屋住宅の既存建物屋根瓦の保存解体再利用
- 和風二世帯住宅の既存靴脱ぎ石の縁側再利用
- 歯科医院を行う移転先既存内装を解体して分かること
収蔵庫・展示・陳列
- 家宝骨董品美術品の保存収蔵庫と展示室
- 本社オフィスビル絵画展示
- 事務所オフィスエントランスホールに絵画展示掲示用の背景壁面を立てる
- 彫刻家のアトリエ工房と展示ギャラリーの家
- ステンドグラス窓を綺麗に見せる
- 階段下収納のマグネット掲示板
- 和風数寄屋和室床の間の床柱落し掛け寸法
- 調剤薬局店舗の医薬品商品の陳列並べ方と売り方
- 販売商品に合った陳列棚と内装インテリア仕上材
- 土産グッズを陳列する壁面棚
- 玄関リビング階段壁面にニッチ棚飾り棚を設ける
- 新築歯科医院診療所の歯科グッズ陳列棚
キッチン・トイレ・洗面・水廻り設備
- 奥様に便利なリビングダイニングキッチンLDK
- アイランドキッチンと背面収納
- 二世帯住宅の対面並列2型アイランドキッチン
- 二世帯住宅の2型キッチンビルトイン食器洗浄機
- 二世帯住宅の2型キッチンビルトインガスコンロ
- 二世帯住宅の汚れにくく清掃し易い洗面器台
- 汚れないトイレ@オフィスビル
- 工場事務所オフィストイレの汚れにくい内装材料と照明
- 歯科医院クリニックにシャワー設備を設ける
- 小児歯科医院の親子患者様用トイレ便所
- 小児歯科医院のキッズ子ども用診察台ユニット
- 小児歯科医院の親子歯磨き指導用洗口台
- 小児歯科医院の子ども用大便器洗面器洗口台
- 小児歯科医院のデンタル器具消毒洗浄室
- 小児歯科医院のコンプレッサーバキューム機器置場カバー
- 糖尿病内科クリニックの患者様車椅子トイレ
- 糖尿病内科クリニックの男性用小便器トイレ
- 糖尿病内科クリニックの検尿コップトイレ受付窓口
- 歯科医院の洗口洗面台と患者様スタッフ兼用トイレ
- 歯科医院の消毒技工作業コーナー
- 歯科医院の衛生設備器具の選定とショウルーム
- マンションリフォームでトイレの大便器をショウルームで選ぶ
- 木造2階建て賃貸アパートのトイレ風呂洗面脱衣洗濯水廻り設備室の間取りプラン
- 大学体育館施設の地下屋内温水プールの消毒シャワー・洗眼器
- 内科医院クリニックのトイレ手洗い間取り設計給排水配管ルート
- 医院クリニックのウイルス除菌感染症拡大防止対策の手洗い洗面台
- 医院クリニックの手洗洗面台と手拭き紙ペーパーとゴミ入れ口
- 掃除しやすい洗面台とボウルが一体になっている汚れにくい手洗台カウンター
- 新築歯科医院診療所の滅菌消毒室
水廻り設備キッチントイレ
- 奥様に便利なリビングダイニングキッチンLDK
- アイランドキッチンと背面収納
- 二世帯住宅の対面並列2型アイランドキッチン
- 二世帯住宅の2型キッチンビルトイン食器洗浄機
- 二世帯住宅の2型キッチンビルトインガスコンロ
- 二世帯住宅の汚れにくく清掃し易い洗面器台
- 効率の良い太陽光発電パネル屋根
- 水はけの悪い敷地のゲリラ豪雨排水対策
- 二世帯住宅の床暖房はガスか電気か
- エアコン取替ネット購入
- 排水管ポンプを新設してトイレと手洗設置@精神科医院
- 内装床壁天井と設備工事の順番@精神科医院
- 藤巻歯科医院の診察室の床下配管と上げ床
- 工場事務所オフィスの空調エアコン設備
- 工場事務所オフィスの家具配置とコンセント電気設備
- 和風数寄屋二世帯住宅の隠蔽型エアコン
- 二世帯住宅の汚れにくく清掃し易い洗面器台
- 和風二世帯住宅でエネファームを導入
空調エアコン・換気設備
- 湿度が高くてカビ臭い−箱根の別荘
- 和風数寄屋二世帯住宅の隠蔽型エアコン
- エアコン取替えをネットで購入した
- 工場事務所オフィスの空調エアコン設備
- 調剤薬局店舗売場の空調設備エアコンシーリングファン
- 大学校内の体育館スポーツ施設の空調エアコン換気設計
- 内科医院クリニックの空調エアコンを多重化分割設置
- 内科医院クリニックの内部汚染空気を排気する換気方法
- クリニックのウイルス感染症拡大防止対策の換気対策給気排気設備
- 部屋数の多い医院クリニックの空調エアコンの設置設計計画
- 建物室内の換気扇給排気設備と空調エアコンの違い役割機能
照明計画設計と器具
- 患者様が眩しくない診察室照明
- 診察室照明を眩しくなくする
- 天井吊りペンダント照明
- 目に優しい診察室の間接照明
- 藤巻歯科医院の患者様が眩しくない天井吊り間接照明
- 歯科医院クリニックの待合診察室照明照度色温度
- 販売店舗を広く見せる演出天井照明
- 工場事務所オフィスの照明器具配置と色温度
- 和風数寄屋二世帯住宅の明かり照明
- 二世帯住宅の吹抜リビング間接照明と天井吊下げペンダント照明
- 北側個室に天窓トップライトで採光明るさ確保@二世帯住宅
- 医院クリニック診療所病院併用住宅の照明光源の色温度
- 歯科医院併用住宅の診察室の天井を照らす間接照明
- 小児歯科医院の診察室診療中患者さんが眩しい天井照明
- 調剤薬局店舗の売場商品用照明ライト
- 歯科医院の待合室診察室の照明の色温度
- 歯科医院移転内装工事の診察室天井の間接照明
- 暗い印象の事務所オフィスを明るくする改修リフォーム
- 部屋の明暗印象ー凹凸の影で暗い印象の壁を明るくする
- 寺院境内の山門手前の玄関門扉を錆びない軽い形に取り替え
- 木造2階建て賃貸アパートの内装ライティングレール照明
- 木造2階建て賃貸アパートの外部玄関アプローチの明かり照明ライト
- 外部屋根大庇軒裏を照らす壁面アッパーブラケット間接照明
- 学校キャンパス体育施設の地下屋内温水プール大空間照明設計計画
- 地下屋内温水プール照明器具をステンレス埋め込みボックスに設置
- 心療内科医院クリニックの待合室患者様動線の間接照明と扉仕上げ
- 精神科心療内科ショートデイケアクリニックの天井LED照明
- 精神科心療内科医院クリニックの待合室診察室の照明設計
- 新築歯科医院の診療室の間接照明
- 狭小新築歯科医院の患者様が眩しくない天井間接照明
建物内部の造作家具特注設計
- 階段下収納のマグネット掲示板
- 広いバルコニーと目隠しルーバー手摺
- 家族の思い出物品を保存する
- 和風二世帯住宅の玄関下駄箱と収納
- 和風数寄屋住宅の玄関引戸と照明
- 和風二世帯住宅の神棚
- 和風二世帯住宅の仏間仏壇
- 二世帯住宅の北欧風リビングの壁面大型テレビ収納棚
- 二世帯住宅の階段下収納
- 二世帯住宅の寝室隣りのウォークインクローゼット造作
- 和風二世帯住宅の物干し
- 玄関リビング階段壁面にニッチ棚飾り棚を設ける
- WIC収納部屋の扉と引戸を壁の様に見せる太鼓貼りと引き手金物
- 木造2階建て賃貸アパートの1LDK3連引き戸間仕切り
- 地下屋内温水プールの扉壁点検口をタイルを貼って目立たなくする
- 大学校スポーツ体育館施設の防球ネット
- 大学校体育館スポーツ施設の壁面取り付けバスケットゴール
- 大学キャンパス体育館施設の球技競技のための耐衝撃壁面と防球ネット
- 和風二世帯住宅に自宅勤務用書斎机サテライトテレワークスペース
- 和室床の間書院をサテライトテレワーク自宅勤務用書斎スペースに
- 二世帯住宅に自宅勤務サテライトテレワーク用事務机仕事スペース
- 木造3階建住宅にサテライトテレワーク自宅勤務用書斎机スペース
- 木造3階建住宅リビング書斎テレワークサテライトスペース勉強机
- 賃貸アパートにサテライトテレワーク在宅勤務事務机とLDK間仕切を設ける
- 戸建て住宅リフォームで小型仏壇を置く造作家具棚設計
- 階段縦型格子状壁面手摺の木造住宅リフォームリノベーション
- 女性用個室寝室の化粧前鏡ドレッサー造作家具設計
- 住宅リフォームの収納押入クローゼットの模様替え可動棚
- 住宅和室仏間の仏壇造作にひな壇を追加製作設置する
- 戸建住宅和室造作仏壇の引戸を開き折戸に改修
神棚・仏壇の造作
医院の造作家具特注設計
- カルテ収納棚とロフト収納
- 患者様通しの視線を遮る目隠し板
- 移動式キャビネットを手洗台に収納
- シンプルデザインのワンルーム内装収納
- カルテ収納棚を工夫
- 歯科診察ユニット台目隠し壁
- 使い易い消毒カウンター
- 藤巻歯科医院の診察室カルテ記入台
- 藤巻歯科医院の患者カルテファイルと収納棚
- 藤巻歯科医院の診察台ユニット間の目隠し板
- 藤巻歯科医院の受付カウンター寸法
- 医院クリニックのポスターチラシの壁面掲示板
- 歯科医院クリニックの受付カウンターに商品棚
- 歯科医院併用住宅の手洗消毒技工台の特注造作と電源設備
- オフィス事務所建物の壁面収納
- コンピューターサーバー免震装置
- 土産グッズを陳列する壁面棚
- 小児歯科医院の内装設備造作家具
- 歯科医院クリニック内装造作工事で特注品既製品で金額抑制
- 小児歯科医院のキッズ子ども用診察台ユニット
- 小児歯科医院の患者待合室コーナー
- 小児歯科医院の受付カウンターと商品棚
- 小児歯科医院のカルテ収納棚
- 小児歯科医院のカルテ記入台スペース
- 小児歯科医院のコンプレッサーバキューム機器置場カバー
- 小児歯科医院の患者様親子トイレにおむつ替え台
- 小児歯科医院の子ども用大便器洗面器洗口台
- 小児歯科医院の受付カウンター壁面グッズ商品棚
- 小児歯科医院の診察器具ワゴン収納
- 小児歯科医院の消毒室のスウィングウェスタン扉
- 小児歯科医院の待合室受付診察室区切る窓壁扉カルテ収納棚
- 小児歯科医院の受付カウンター壁面グッズ商品棚
- 小児歯科医院の診察器具ワゴン収納
- 調剤薬局店舗の健康相談と商品陳列壁面棚と説明表示
- 調剤薬局店舗の医薬品商品の陳列並べ方と売り方
- 調剤薬局店舗の処方箋受付会計カウンター
- 調剤薬局店舗の患者様健康相談カウンター
- 調剤薬局店舗の出入口窓の目隠しブラインド
- 糖尿病内科クリニックの受付カウンターとカルテ棚
- 糖尿病内科クリニックの検尿コップトイレ受付窓口
- 歯科医院の待合室に透明ガラス面に透過ブラインド
- 歯科医院の待合室造作のポスターチラシ掲示板
- 歯科医院の受付カウンターの形と寸法
- 歯科医院のカルテ収納の位置と形
- 歯科医院のX線室放射線遮蔽扉を引戸
- 歯科医院の相談コーナーの目隠し可動間仕切り
- 歯科医院の診察室の作業台手洗いカウンター
- 医院クリニック内部ドア扉色を患者様スタッフ使用を色分け
- 内科医院クリニックのレントゲンX線室出入口を引戸
- 内科医院クリニックの道路側ガラス面待合室の日避け目隠しを縦型ブラインド
- 内科医院クリニックの段差のある出入り口の傾斜床
- メンタルクリニック心療内科精神科医院の玄関に自動ガラス引戸を設置
- メンタルクリニック心療内科精神科医院の受付カウンター寸法設計図
- 精神科心療内科メンタルクリニック内装の患者様用扉引戸
- 医院クリニック内装工事の開口窓西日避け対策縦型ブラインド
- 心療内科医院クリニック受付カウンターのデザイン形状高さ寸法と材料
- 心療内科医院クリニック診療所受付カウンターの壁面収納書棚
- 医院クリニック受付カウンターウイルス飛沫感染防止対策アクリルスクリーン
- 医院クリニックの受付カウンターの寸法と収納通信電気設備設計
- 医院クリニックの受付カウンター歯磨きブラシ商品グッズ陳列棚台設計
- 医院クリニック診療所の受付カルテ収納造作棚設計
- 医院クリニック診療所の受付をコンパクトな最小寸法カウンターにする
- 歯科医院診療室の診察台ユニット間の目隠し隔て板設計
- 歯科医院の技工室の作業台シンク造作設計
- 医院クリニック手書きパソコン入力双方が利用するカルテ記入台
- 歯科医院クリニック診察室の手洗い作業台造作設計
- プライベート確保の医院クリニック待合室患者様カウンター隔板設計
- 医院クリニックの尿検査コップ受け渡し小窓造作設計
- 医院クリニック待合室のプライベート個別一人掛け椅子チェア
- 成人対象感染症診療医院クリニックの受付カウンター設計図
- 皮膚科クリニックの待合室受付カウンター壁面開口
- 新築歯科医院の待合室受付カウンター
- 新築歯科医院の待合室の造作カルテ棚収納家具
- 新築歯科医院の診療室照明目隠し消毒作業台収納造作
- 新築歯科医院の診療室造作消毒作業台
レントゲンX線室の間取りプラン放射線遮蔽
- X線レントゲン室の寸法と放射線遮蔽内装仕上

- 歯科医院併用住宅のレントゲンX線室広さ寸法PC通線

- 小児歯科医院のX線室の室内寸法放射線遮蔽

- 糖尿病内科クリニックのレントゲンX線室の準備
- 歯科医院のX線室放射線遮蔽扉を引戸

- 内科医院クリニックのレントゲンX線室放射線遮蔽の床壁天井内装

- 内科医院クリニックのレントゲンX線室出入口を引戸

- 休診しないで改装リフォームした歯科医院クリニック併用住宅

- 仮診療所のX線室レントゲン放射線遮蔽プレハブユニットボックス

- 整形外科医院のレントゲンX線室の開扉を引戸に取替え

- X線室出入口開き戸を引戸に交換設計休院しない工事

- 整形外科医院のX線室出入口開き戸を引き戸に交換設計工事

- X線室出入口扉を休院しないで交換設計工事@整形外科医院
医院を休院しない建替え内装リフォーム設計工事
- 歯科医院集客内装リフォーム休院しない短期間工事
- 併用住宅だから出来た休院しない仮設診療所 歯科医院改装設計工事
- 休診しないで改装リフォームした歯科医院クリニック併用住宅
- 仮設調剤薬局建物を通常確認申請か許可申請か
- 建替え中の仮設建物調剤薬局店舗工事金額費用を安くする工夫
- 仮設調剤薬局店舗建物の工事順序
- 代替わり地域密着内科医院クリニック併用住宅の休診しない建替え
- 内科医院クリニック併用住宅代替わりで休院しない建替え設計計画順序
- X線室出入口開き戸を引戸に交換設計休院しない工事
- X線室出入口扉を休院しないで交換設計工事@整形外科医院
建物各部の詳細寸法
- 住宅建物のコンクリート造基礎と木造土台床の地面高さ寸法
- 和風数寄屋和室床の間の床柱落し掛け寸法
- 歯科診察台ユニットの周囲寸法
- 藤巻歯科医院の受付カウンター寸法
- 歯科医院の受付カウンターの形と寸法
- 調剤薬局店舗の処方箋受付会計カウンター
- X線レントゲン室の寸法と放射線遮蔽内装仕上
- 小児歯科医院のX線室の室内寸法放射線遮蔽
- 糖尿病内科クリニックの診察室幅奥行き寸法
建築物の特殊な設計技術
- 防火地域に木造耐火建築物
- 湿度が高くてカビ臭さ対策
- 防犯と風通しが出来る外付けブラインドサッシ
- 温浴施設公衆浴場の設計図
- X線レントゲン室の寸法と放射線遮蔽内装仕上
- 和風二世帯住宅のバルコニーFRP防水と排水
- 小児歯科医院のX線室の室内寸法放射線遮蔽
- 汚れないトイレ
- 日射しを和らげるエントランスホール
- 絵画展示
- コンピューターサーバー免震装置
- マンションリフォームで個室寝室を防音遮音仕上げ室にする
- マンションリフォームで建材のアレルギーを工事前に直接実体験して判別
- 部屋の明暗印象ー凹凸の影で暗い印象の壁を明るくする
- 大学キャンパス体育館施設耐火建築物の鉄骨部材耐火被覆塗料
- 学校体育館地下屋内プールの耐水耐湿防錆吸音床壁天井仕上げ材料
解決困難な問題を実現した建築計画
- 電車の振動と騒音対策を木造建物で実現
- 患者様が眩しくない歯科診察室照明
- 別荘の湿度がが高くてカビ臭い
- 寝室を防音にしたい
- 三角形変形地の内装間取りプラン設計
- 防犯と風通しが出来る外付けブラインドサッシ
- 汚れないトイレの設計
- 排水管と排水ポンプを新設してトイレと手洗台を設置
- 増築する階段デザインを違和感なく馴染ませる設計デザイン
- 旗竿型路地状42条2項道路と敷地接道整理で賃貸アパート建築可能か確認
- 木造2階建て賃貸アパートの道路接道と狭隘道路協議=道路境界の確定
- 都市計画道路収用による歯科医院併用住宅の建替え移転
- 土地購入して賃貸アパート併用住宅木造耐火建築を住宅ローンで建てる
- 第一種低層住居専用地域で調剤薬局店舗付き内科医院診療所クリニック
- 併用住宅だから出来た休診無しの歯科医院クリニックスケルトン改修リフォーム
- 併用住宅だから出来た休院しない仮設診療所医院改装設計工事
- 休診しないで改装リフォームした歯科医院クリニック併用住宅
遠距離設計業務
- 遠距離地でも建築設計施工相談出来る?・・・建て主様が関西↔︎敷地が東京
- 遠距離の土地に歯科医院併用住宅を建てる・・・建主様設計者が関東↔︎敷地が福島
- 木造2階建て賃貸アパートの遠距離施主オーナーと設計工事の進め方・・・建主様関西↔︎敷地東京
- 遠距離の医院クリニック設計ー心療内科精神科ショートケアクリニック・・・名古屋↔︎横浜
- 九州福岡博多賃貸テナントビル事務所を飲食物販店舗に用途変更・・・福岡↔︎横浜
よくある相談問合せ
建築家の日記
- 2023.03.16 ディズニーランドの心遣いに真のバリヤフリーを感じる
- 2021.11.14 「50の手習い」か「昔取った杵柄」かービューグルを吹く
- 2018.12.22 冬至に頂く穴八幡宮「一陽来復」御守札
- 2018.10.28 信州長野のリンゴ農園
- 2018.07.29 デザインされた名刺の追加注文印刷
- 2018.07.28 伊勢神宮参拝と日本伝統建築
- 2018.06.22 経営セミナーと岡山の吉備津神社・後楽園流店
- 2018.01.05 関東学院マーチングバンドOBOG会
- 2017.07.27 日本大学非常勤講師の建築設計製図授業
- 2016.12.24 全国高等学校弓道選抜大会
- 2016.11.24 横浜大桟橋象の鼻パークでマーチングバンドのドリル演奏演技
- 2016.06.17 豊田市美術館と庭園と数寄屋建築茶室苑
- 2016.06.13 麗澤瑞浪中学・高等学校文化祭「麗明祭」
- 2016.05.04 よこはまパレード(みなとまつり国際仮装行列)
- 2016.04.01 乗用車バッテリーが寿命で交換
- 2016.01.04 皇居一般参賀(横浜の建築家の新年)
- 2015.12.31 大晦日に大祓-鎌倉鶴岡八幡宮(横浜の建築家の年末)
建築用語の説明集
- 開発行為(かいはつこうい)
- 建築面積(けんちくめんせき)
- 建ぺい率(建蔽率、けんぺいりつ)
- 市街化調整区域(しがいか ちょうせいくいき)
- 主要構造部(しゅようこうぞうぶ)
- 耐火建築物(たいかけんちくぶつ)
- 第一種低層住居専用地域(だいいっしゅていそうじゅうきょせんようちいき)
- 都市計画法(としけいかくほう)
- 用途地域(ようとちいき)
- 容積率(ようせきりつ)
- 用途変更(ようとへんこう)
新聞雑誌掲載・TV出演
- 書籍出版「間取りの模範解答」(建築家31会)
- 歯科医院情報誌「アポロニア21」2022年11月号に掲載
- 写真集「歯科医院デザイン Catalog2」に掲載
- 歯科医院情報誌「アポロニア21」2022年1月号に掲載
- 月刊「近代建築」2020年7月号(学校特集)に「昭和女子大学西キャンパス」掲載
- 木造の防音対策で賃貸不動産オーナー向け経営情報誌「家主と地主」2020年5月号に掲載
- ヨコハマNOW 記事掲載「建物の長寿命化とスクラップアンドビルドから脱却」
- 受付待合の特集記事で歯科医院誌「アポロニア21」2019年7月号に掲載
- 図学の教科書に設計したらせん階段が掲載されました
- 歯科医院情報誌「アポロニア21」2018年4月号に掲載
- 「距離感を大切にして暮らせる上品な和風の2世帯住宅」としてhomifyの特集記事で紹介
- 医院クリニック内装設計についてリフォーム産業新聞に掲載
- 歯科医院情報誌「アポロニア21」2016年7月号に掲載
- AA STUDIO建築家相談会がヨコハマ経済新聞に掲載されました
- 「いびつな土地」楽待不動産投資新聞インタビュー掲載
- 飲食店内装設計横須賀ドブ板ネイビーバーガー「ツナミ」新聞掲載
- 横浜の建築家「AAスタジオ」が読売新聞に紹介掲載されました
- TV番組「価値ある家づくり バリューハウス」に出演!
- 建築家31会が日刊木材新聞に掲載されました
展示相談会

- 注文二世帯住宅店舗アパート医院@横浜元町AAスタジオ
- 建築家と家をたてるin湘南
- 防犯に強い窓に交換相談会@横浜みなとみらい
- 玄関扉を防犯に強いカギに交換相談会@横浜みなとみらい
- 建築家模型展示相談会@東京新宿
- アパートマンション併用住宅の設計図は建築家@東京新宿相談会
- 医院クリニック併用住宅の間取り設計図は建築家@東京新宿相談
- 古い家をリフォームか?建替えか?建築家に相談@東京新宿展示会
- 別荘セカンドハウスの間取り設計図は建築家@東京新宿展示会
- 土地探しから相談できる建築家@東京新宿展示会
- 旗竿地の間取り設計を建築家に相談@東京新宿展示会
- 変形地に注文住宅設計建築家相談@東京新宿展示会
- 狭小敷地に注文住宅アイデア建築家相談@東京新宿展示会
- 注文住宅家の建替え相談会@建築家サロンin自由が丘
- 相続税対策不動産家建替相談@自由が丘建築家サロン
- 二世帯住宅建替分離間取り相談会@自由が丘建築家サロン
- 高級和風注文住宅建替間取設計相談会@自由が丘建築家サロン
- ガレージ車庫注文住宅建替費用金額相談@自由が丘建築家サロン
- 注文住宅家の建替え費用金額相談@自由が丘建築家サロン
- 店舗併用住宅設計図金額相談@自由が丘建築家サロン
- マイホームデザイン設計図相談会@横浜みなとみらいマークイズ
- 旗竿地変形敷地に家を建てる間取り相談会@横浜みなとみらい
- 土地探しからマイホームのデザイン設計相談会@横浜みなとみらい
- 住宅耐震性能構造相談@横浜みなとみらい
- いびつな土地変形地注文住宅相談@横浜みなとみらい
- 旗竿地変形地注文二世帯住宅相談@横浜みなとみらい
- 狭小敷地注文住宅相談@横浜みなとみらい
- 傾斜地がけ地注文住宅相談@横浜みなとみらい
- 窓扉取替え相談会@横浜みなとみらい
- 夜窓を開けて寝られる風通しの良い窓相談@横浜みなとみらい
- 留守中のペット防犯と風通しを叶える窓相談@横浜みなとみらい
- 結露する窓相談@横浜みなとみらい
- 防音窓の相談@横浜みなとみらい
- 断熱窓サッシ扉の取替修理相談会@横浜みなとみらい
- 横浜みなとみらい模型住宅展示場家づくり建築家相談
- 注文住宅マイホームデザイン設計図@神奈川横浜模型住宅展示場
- 狭小地傾斜地にマイホームデザイン設計-横浜模型住宅展示場
- 土地探し二世帯住宅間取り設計−横浜模型住宅展示場
- 「BoConceptと家づくり」家具から考える建築家@横浜
- 横浜みなとみらい模型住宅展示場ー注文住宅相談会
- 横浜みなとみらい模型住宅展示場−マイホームデザイン設計相談会
- 横浜みなとみらい模型住宅展示場マイホーム設計デザイン相談
- 自由が丘模型住宅展示場建築家サロン
- 自由が丘模型住宅展示場-店舗医院クリニック相談
- 自由が丘模型住宅展示場建築家サロン建替え相談
- 自由が丘模型住宅展示場建築家サロン家の悩み相談
- 「BoConcept と 家をつくる」(家具から考える住まい)
- 模型住宅展示場家づくり設計図相談会@東京新宿パークタワー
- 家の建替え設計施工相談@新宿パークタワー
- 一戸建て注文住宅設計図相談@新宿パークタワー
- マイホーム設計デザイン模型住宅展示場建築士@新宿パークタワー
- 横浜高島屋インテリアフェスティバルリフォーム相談会
- 家づくりセミナー模型住宅展示場@横浜みなとみらい
- 家具から考える家づくり@BoConcept横浜みなとみらい
- 建築家模型住宅展示場@横浜(土地探し相談会)
- 「家具と建築の模型展」2(家具から考える住まい創り)
- 「家具と建築の模型展」(家具から考える住まい創り)
- 土地敷地探し購入からの家づくり設計デザインで建築家の役割
- 傾斜地崖地に建つ住宅の長所を引き出す建築家のアイデア設計
- 旗竿地でも豊かな間取りになった建築家のアイデア設計
- 狭小地でも日当たり風通しが良く広さを感じる注文住宅の設計アイデア
- 住宅やマンションをリフォームリノベーションして長く快適に住む
- 床の段差を無くしたバリヤフリー平屋建ての家
- 3階建てだから出来た注文住宅の間取り設計図のデザイン
- 二世帯住宅の上下左右前後分離の間取り設計図の工夫
- 家と使い方寸法高さが異なる店舗医院賃貸アパート併用住宅の設計図
- キッチン厨房勘定受付カウンターや商品陳列棚照明のショップインテリアデザイン店舗設計
- 海が見えて山が眺望出来る家住宅と移住予定の別荘
- 周囲の賃貸物件と差別化するアパートマンション集合住宅
- 玄関に広い土間を設けて便利に利用する家の使い方
- 壁で部屋を区切らずに段差で仕切るスキップフロアの間取りプラン住宅
- 住宅の内部とつながる外部空間中庭テラスバルコニーの設計
- 注文住宅リビングダイニングキッチンLDKの間取り平面設計図
- 陽当たりや風通しの良い注文住宅の間取りプランの設計図
- 工夫とアイデアが詰まった住宅キッチンのオリジナル設計デザイン
- 風呂洗面洗濯水廻り室の間取りプランを工夫した設計図
- 使い方で素材寸法形が決まる住まいの内装特注造作階段手摺扉戸収納洗面台作業机
- 犬猫ペットと健康に暮らす家づくりの設計図
- 趣味を楽しむ家ホームデザイン設計
- 既存住宅の古材を再利用して新築内装に活かす注文住宅設計デザイン工事
- 13坪狭小敷地に超過容積率分を吹抜けにして明るく風通しの良い開放的な木造3階建住宅設計
- 敷地周辺道路を自宅庭に取り込みLDKと庭を一体的な間取り空間構成開放的な注文住宅
- 鉄筋コンクリートRC造マンションリフォームで家事動線廊下に収納洗濯水廻り室の設計図
- 建築家31会ーvol.31
- 建築家31会ーvol.30
- 建築家31会ーvol.29
- 建築家31会ーvol.28
その他の北島俊嗣 建築解説記事
- 住宅リビング店舗客席医院待合室の家具選び
- 和風木造住宅の屋根の形デザイン葺き材料
- 住宅リビングや店舗客席医院待合室診察室の間接照明の演出と照度
- 用途変更の建築確認申請手続きが必要な建物
- 調剤薬局は第一種低層住居専用地域に建てられる?
- 木造3階建て共同住宅賃貸アパートの設計
- 和風木造二世帯住宅の外観内装デザイン設計
- 歯科医院クリニック改修リフォームの工事金額費用を予算金額内で設計
- 大地震に耐えて倒れない家住宅建物にするために
- 台風やゲリラ豪雨長雨による住まい建物の雨水洪水対策
- 企業本社オフィスビル建物の建替新築計画設計
- 木造2階+3階建て二世帯住宅の日当りを良くする設計
- 医院クリニックモールビルの建替新築計画設計
- 木造3階建てデザイン注文住宅リフォーム工事費用を安くする
- 工場事務所オフィス建物の建替え計画設計
- 上下分離の二世帯住宅の間取りプラン設計比較
- 歯科医院クリニック併用住宅の工事費を安く建てる設計工夫
- 相続土地活用の賃貸テナントビル事業収支計画と設計デザイン
- 和風外観二世帯住宅の建替え設計デザイン意匠
- 内外断熱の違いと断熱材発泡スチレンウレタングラスウール
- 高級和風寿司飲食店舗和風モダン内装インテリア設計
- 旗竿地隠れ家木造ロフト長屋型アパート設計デザイン
- 土地購入からのアパート計画ー杉並のロフト付賃貸長屋型木造アパート
- 医院診療所クリニックの内装工事費坪単価を安くする工夫方法
- 歯科医院デンタルクリニック開業を設計と施工を分離した設計事務所に相談
- 防火地域に建つ木造耐火建築物の工事費用坪単価―立川のロフト付アパート併用住宅
- 木造2階建てロフト付賃貸アパート併用住宅を住宅ローンで建てる
- 注文住宅の床の材料として畳たたみを敷いた部屋の使い方
- 今更聞けない注文住宅や別荘の家づくりに必要な5つのこと
- アパート賃貸物件を木造3階建か鉄筋コンクリート4階建かの見極め方法
- 大磯の調剤薬局併用住宅建替えの売場内装間取りインテリア設計図
- 大磯の調剤薬局店舗の建物外観デザイン正面ファサード設計図
- 大磯の調剤薬局の外部看板サイングラフィックデザインとブランディング
- コンクリートブロック塀の危険な使い方と正しい造り方
- 小児歯科医院の受付カウンターとカルテ棚を間仕切りに利用する
- 軽量鉄骨造と重量鉄骨造の違いと長所メリットと短所デメリット
- 和風住宅の床の間付け書院床柱落掛けに既存住宅の造作材料を再利用する
- 和風住宅の仏間と仏壇壁面造作
- 和風住宅の和室応接室の駆込み天井と竿縁天井の埋込み照明
- 木造歯科医院併用住宅の地盤調査と杭基礎地業工事
- 糖尿病内科医院クリニックの間取りプラン平面図
- RC造マンションの設計事務所が行う定期検診と大規模修繕改修工事
- マンションリフォームで設計事務所が関わるメリットデメリット
- エコカラットのアレルギー吸収効果と壁面仕上げデザイン
- マンションリフォームでアレルギー反応材料をサンプル実体験で判定
- 個室寝室を遮音防音室に変えるマンションリフォーム
- マンションリフォームで生活に彩りを添える玄関リビング階段壁面の飾り棚
- 地下室の建築費用が地上建物より高額になる理由
- 建築不可土地に接道確保で建築可能になった路地状旗竿敷地
- 木造2階建て賃貸アパートを満室にする設計工夫
- 遠距離敷地の設計施工相談方法進め方
- 準防火地域でも住宅建物の外壁軒天井に貼れる防火木材の家
- 冬暖かく夏涼しい住まいの冷暖房設備を住宅内部に水蓄熱する
- セミオーダーの内装インテリア木製建具ウッドドア
- 地盤調査や検査の正しい見方と地盤改良工法
- くつろぎの空間に外構庭ガーデンの景色を取り込む
- 住まいのライフスタイルを反映するオーダーキッチン
- 注文住宅のインテリア床材で天然木無垢フローリング床暖房の選び方
- 好きになるオーダーキッチンテーブルを使い易くする
- マンションのユニットバスをホーロー浴槽に変えた水廻りリフォーム
- ファブリック布地家具で上質でラグジュアリー高級な住まい
- クラシック家具の魅力
- 暖をとり調理もできる薪ストーブのある住まいの魅力
- 心療内科精神科医院クリニックの診察室の防音遮音対策設計工事
- 心療内科精神科医院メンタルクリニックの新型コロナウィルス感染防止対策
- 在宅勤務テレワーク用書斎机スペースを設けた木造和風二世帯住宅リビング
- 和風住宅の床の間付書院応接間を在宅勤務テレワークの打合せスペースに
- 地下RC造建物の地中外壁防水止水と内部湧水集水排水対策
- 地下水排水対策用外壁二重壁基礎ピット排水釜場ポンプ点検口
- 土地購入してロフト付賃貸アパート併用住宅木造耐火建築を住宅ローンで建てる
- 石彫刻工房アトリエ展示ギャラリー兼用住宅
- Uターン帰郷して借地に歯科医院併用住宅を建て再開院間する平屋取りプラン
- 調剤薬局付二世帯住宅建替え中仮店舗営業建物ファサード看板デザイン商品陳列内装インテリア
- ピロティ型大型車輌駐車庫ガレージ付きオフィス管理事務所
- 荷物EV付在庫商品倉庫せんべい和菓子小売販売店舗の和風数寄屋外観内装間取りプラン設計図
- 木造住宅のスケルトンリフォームで内装設計と構造骨組み補強
- 住宅リフォーム梁小屋組が見える吹抜け天井に間接照明
- 木造住宅リフォームキッチン移動リビング拡充間取り設計
- 住宅個室内のドレッサー化粧台鏡家具造作設計図
- 待合室に洗口台手洗台設置歯科医院の間取りプラン設計図
- メンタルクリニック心療内科受付カウンター高さ寸法設計図
- 医院クリニック診療所のカルテ収納棚置場の設計図工夫
- 内科医院診療所のX線室レントゲン放射線遮蔽の内装床壁天井
- 二世帯住宅に和風リビングに書斎事務机サテライトテレワークスペース設計
- 寝室を防音して静かに眠る住宅にする遮音設計図
- 数寄屋和風二世帯住宅の屋根軒先に雨樋を付けない雨水排水処理
- 親子世帯を上下分離か左右配置か和風二世帯住宅の間取りプラン設計図
- 防音遮音界壁にする木造賃貸アパート住戸間壁の設計図
- 建替え出来ないと言われた敷地で土地共有者と合意して新築建替え
- 家を建てる敷地の接道道路幅員細街路狭あい拡幅協議の道路後退セットバック
- 家の建替えに必要な敷地測量図
- 北西方向き狭小敷地に明るいリビングの家を建てるプラン間取り設計
- 面積容積を広く大きくする木造2階建てロフト付き狭小住宅の間取りプラン設計
- 注文住宅の和室仏壇の引戸を折戸に改修した造作設計
- 住宅密集地の木造狭小住宅で日差しを取込みリビングを明るくする屋根
- 風通しを良くする住宅密集地の木造狭小住宅の工夫
- 木造2階建狭小住宅の玄関を広く感じるスケルトン階段と手摺
- 住宅密集地の木造狭小住宅のLDKリビングダイニングキッチンを2階に配置して明るくする
- 木造住宅の階段上がり下がりはじめに彩光窓
- 住宅密集地に建つ狭小住宅の視線を合わせない高窓
- 通風出来る雨戸を住宅密集地の木造狭小住宅に設置
- 東京住宅密集地のリビングを明るくする木造狭小住宅2階吹抜けのハイサイド高窓
- 住宅密集地に建つ狭小住宅2階吹き抜けリビングダイニングの照明
- 木造住宅ダイニング食卓テーブルの天井照明器具と設置位置移動調節の回転式ライティングレール
- 木造住宅リビング吹抜けの床暖房とエアコンとシーリングファン
- 木造住宅の対面II型キッチンの選び方作り方設計
- 木造住宅で外気風を取り込む左右片開き方型上下ガラス窓
- シャンプーシャワー付き既製品洗面台を特注造作引出し付き収納台に乗せる木造住宅
- 木造戸建て住宅で洗濯物を雨雪日に干せる屋根付き半屋外バルコニー物干し金物
- 木造住宅建替えの地鎮祭で神主様にお祓いいただいて古井戸を埋める
- 木造2階建て住宅建替えで問題解決して実現した建前上棟
- 住宅の木造骨組みシロアリ対策 (防蟻処理)
- 内科診療所医院クリニック併用住宅の代替わり建替えで休院しない計画設計工事順序
- 世田谷区下北沢パチンコ店舗遊技場をスポーツゴルフ練習場へ用途変更確認申請
- 遠距離の賃貸テナントビル内事務所を物販店舗飲食店舗に用途変更
- 用途変更確認申請には確認済書・検査済書・構造計算書が必要
- 川崎高津のRC造3階建て賃貸マンションアパートの間取り設計プラン
- 3階建て共同住宅賃貸マンション@川崎のRC鉄筋コンクリート造壁式ラーメン構造設計
- 賃貸共同住宅マンション@川崎の共用出入口郵便受箱ポストメール宅配ボックス設計
- RC造3階建て賃貸マンション@川崎の地質ボーリング調査と杭地業工事地盤補強
- RC造3階建て賃貸マンション@川崎の住戸間取りプランとインテリアデザイン内装設計
- 川崎のRC造3階建て賃貸マンションのファサードデザイン外観設計
- 箱根別荘を一棟貸し宿貸別荘民泊に改修リフォームリノベーション
- 箱根別荘を貸別荘民泊にリノベーション改修リフォームでLDKワンルーム
- 箱根別荘を貸別荘民泊に改修リフォームで緑眺望を楽しむ開口窓サッシ
- 箱根別荘を民泊貸別荘に改修リノベーションの断熱除湿結露カビ対策
- 内科医院併用住宅建替え工事計画と間取りプラン
- 内科医院併用住宅の建物外観ファサードデザイン
- 内科クリニック面格子引戸出入り口
- 内科クリニックの段差を無くすバリアフリー条例
- 内科医院クリニックの待合室の工夫設計バリアフリーと高天井吹抜空調換気音響設計
- 内科クリニック待合室吹抜け高い天井照明
- 内科クリニックの待合室吹抜け高い天井のエアコン空調換気設備
- 内科クリニック高い天井吹抜け待合室の残響音を無くす吸音材
- 内科クリニックの受付カウンター
- 内科クリニックのカルテ収納棚
- 内科医院併用住宅の客間を和室にする
- 内科クリニック併用住宅の客間和室の床の間落とし掛け
- 内科クリニック併用住宅の客間和室の障子
- 内科クリニック併用住宅の内断熱ウレタン吹付材
- 内科クリニック併用住宅建替え工事の地鎮祭
- ヨコハマNOW(建築物の長寿命とスクラップ アンド ビルドからの脱却)
- ヨコハマNOW(コップの価格と家を建てる費用の違い)
- ヨコハマNOW(地震で倒れない建物にするために-大地震の教訓から)
- ヨコハマNOW(建築はどんな場合もオーダーメイドです)
北島建築設計事務所が運営するサイト
- 設計事務所の新しい集客方法を検索流入ホームページブログに見つけた
- 毎日ブログを書けないから原稿を書き留めておく
- ホームページの編集更新修正加筆を自分で自由に出来るようにした
- 説明記事ブログは無料ブログサイトではなく自社サイトで公開する
- ホームページ説明記事は専門用語を一般言語に置き換えて分かりやすくした
- 百聞は一見にしかずー写真を撮ってホームページ説明記事内容を分かり易く伝える
- お客様はパソコンスマートフォンタブレットで検索して商品サービスを探している
- 問い合わせをいただくようになれたホームページの改修と改善
- サイトのアクセス表示時間を短くした改善改修の方法
- ホームページブログ記事の編集操作を簡単に出来る工夫をした
- 説明記事文章をより理解をしてもらうための工夫
- 商品説明記事をクリックされるタイトルとメタディスクリプションの検索単語
- 内装リフォーム改修工事をインターネットで集客するサイト設計ー工務店編
- 検索流入で改善したHPー北島建築設計事務所ー
- 漫画0025ー家に初めてネズミが出た話
- 漫画0024ー「しりとり日本美術」に行ってきました
- 漫画0023ーおっちょこちょい
- 漫画0022ーペペロンチーノ大好き
- 漫画0021ー上野トイレミュージアム
- 漫画0020ー東京都美術館の「マティス展」に行った
- 漫画0019ー武蔵美通信 スクーリング 終「言い訳と反省」
- 漫画0018ー武蔵美通信 絵画研究IBスクーリング-4/4「私の作品が一番好き!と思えない」
- 漫画0017ー武蔵美通信 絵画研究IBスクーリング-3/4「石膏像の模写」
- 漫画0016ー武蔵美通信 絵画研究IBスクーリング-2/4「石膏と金箔で額縁をつくる」
- 漫画0015ー武蔵美通信 絵画研究IBスクーリング-1/4「教室はまるで美術館、授業は・・・」
- 漫画0014ー武蔵美通信 絵画表現VBスクーリング-2/3
- 漫画0013ー武蔵美通信 絵画表現VBスクーリング-1/3
- 漫画0012ー武蔵美通信 彫刻スクーリング-3/3 終
- 漫画0011ー武蔵美通信 彫刻スクーリング-3/3
- 漫画0010ー武蔵美通信 彫刻スクーリング-2/3
- 漫画0009ー武蔵美通信 彫刻スクーリング-1/3
- 漫画0008ー水分補給の話
- 漫画0007ー兵馬俑が好き
- 漫画0006ーピクミン
- 漫画0005ー蝉
- 漫画0004ー相棒が好きという話
- 漫画0003ーフォカッチャを作ってみよう
- 漫画0002ーディズニーオンアイスに行ってきた
- 漫画0001ー暑すぎる、まだ6月なのに
- パースー箱根の別荘
- パースー横浜の住宅
- パースー横浜の事務所オフィス
- パースー河口湖のホテル
− 最新イベント情報 −
2月28日(土)住まいの「なかみ」構造見学会のお知らせ @小泉拓也+栗原守
どんなふうにできあがっていくのか、どうやってつくられているのか…住まいの“なかみ”とは、出来上がった時には隠れてしまうところ。見る機会の少ない工事途中を見ていただくものです。 無垢の柱や梁などの構造材、Baubioとセルロースファイバーの断熱材、通気の工夫などの“なかみ”を実際に見ていただきながら詳しく説明をします。光設計の「呼吸する住まい」の“なかみ”を見ることができるいい機会ですので、是非ご参加ください。 会場:杉並区荻窪 「スロープ玄関の小さな木の家」 ...














































































































